最新の都市開発ニュース
東京駅前・JPタワーの南側に地域冷暖房の配管が出現!!構築が進む「丸の内二丁目地区地域冷暖房施設」の新設!!
自民党内に第二青函トンネル建設推進議員連盟が発足!!自動運転車専用道路と鉄道貨物線を併設する北海道と青森を結ぶ新たな海底トンネル「第2青函トンネル(津軽海峡トンネルプロジェクト)」!!
歴史的建造物と高層ビルが融合! 都市開発マニアが案内する「丸の内建築ツアー」 が丸の内LOVE WALKERに掲載!!第25回丸の内を歩くのはなぜ気持ちいい? 皇居前の特等席「丸の内二重橋ビル」が守り抜いた“100尺の美学”
茨城県つくば市・約168.2ha、計画人口約1.1万人の大規模都市開発「上河原崎・中西特定土地区画整理事業」!!新昭和とエスコンによる大規模複合商業施設計画も浮上!!
千葉県流山市・江戸川台駅東口で計画が進む公民複合拠点施設「ジェトロ跡地活用事業」!!優先交渉権者にリープ不動産を代表企業とするグループが選定!!
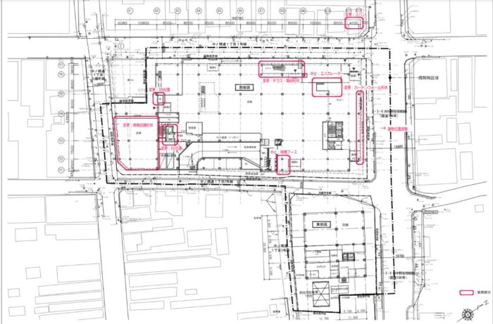
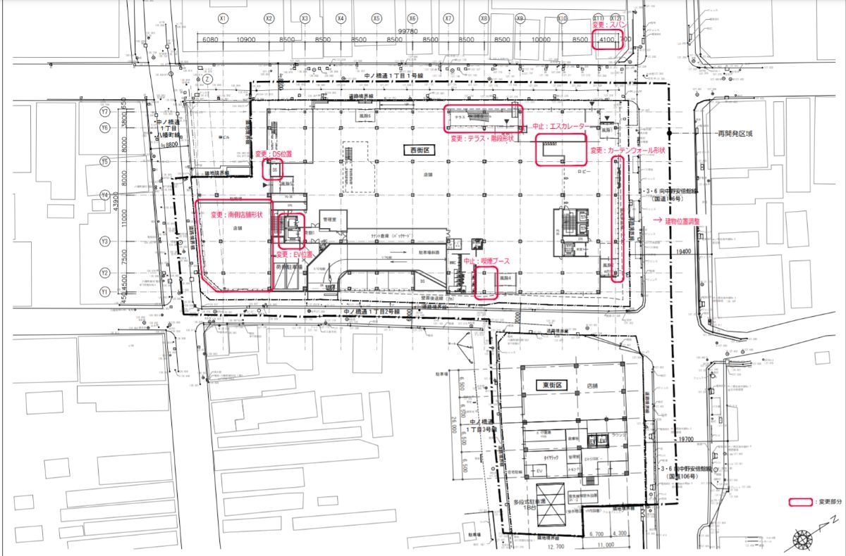
JR船橋市場町社宅跡地の大規模開発により建設が進む4棟・総戸数738戸の大規模分譲マンション「ブランズシティ船橋ビアレ」!!賃貸・商業の複合街区も有する巨大プロジェクト!!
奈良県橿原市・アリーナも新設される構想がある「(仮称)医大新駅周辺まちづくり(奈良県立医科大学附属病院南側地区)」の一般競争入札が開始!!近鉄橿原線医大新駅を中心に大規模な複合拠点形成へ!!
日比谷公会堂や大音楽堂も再整備する計画が進む「都立日比谷公園再生整備」!!大噴水・小音楽堂付近の工事が着工し、芝庭広場はリニューアルオープン!!
佐賀県佐賀市・2029年4月開学を目指す「佐賀県立大学(仮称)」の基本設計が公表!!コンセプトは“まちのようにキャンパスをつくる”!!
後楽二丁目北・北西地区でもまちづくりの検討が進められている「後楽二丁目地区」!!再開発等よる不燃化と個別更新、災害対応の広場を整備する方針!!
つくば市学園の森にイオンの都市型ショッピングセンター「そよら」を2026年秋に出店!!サイエンス大通りに面し、TX研究学園駅から2kmの場所に立地!!
丸の内に建つ岡田信一郎設計・重要文化財「明治生命館」がリニューアル!! 古典主義様式の近代建築に、模型展示やカフェ併設を実施!!
琉球大学上原キャンパス跡地を大規模開発する「上原キャンパス跡地利用推進計画」!!ウェルネスゾーン、人材育成・研究開発ゾーン、文化と賑わいゾーンの3ゾーンから構成!!
多摩都市モノレールを上北台駅からJR箱根ケ崎駅方面へ延伸する「多摩都市モノレール延伸事業」!!2034年度開業を目指して遂に事業着手へ!!
アニメイト通りやハレザ池袋、南池袋公園周辺の池袋駅東口地区を「街並み再生地区」に指定!!リノベーションによる再生まちづくりへ!!
大濠公園に隈研吾建築都市設計事務所による新たな福岡県立美術館を整備!!新築工事に係る一般競争入札が進められている「新福岡県立美術館整備事業」!!
本厚木駅北東側の中町第2-2地区で建設が進む複合施設整備事業「あつめき」!!図書館やプラネタリウム、市庁舎などが入り、開業は2027年度を予定!!
栃木県下野市・自治医大駅を中心とした新たなまちづくり「自治医大駅周辺地区まちづくり基本構想」が策定!!駅西側に図書館や商業・業務施設、多世代交流施設を新設へ!!
阪急大阪梅田駅のリニューアル工事が2026年1月から着工!!旧大阪新阪急ホテルの解体工事にも着手し、遂に梅田ビジョンを実現する「芝田1丁目計画」が始動へ!!
愛知県日進市・名古屋瀬戸道路へ直結した中部圏初の「高速道路IC直結型 次世代基幹物流施設」開発着手へ!!リニモ芸大通駅周辺では(仮称)日進北部土地区画整理事業も進む!!
































