最新の都市開発ニュース
幕張本郷駅近くで進められている約37haの大規模開発プロジェクト「鷺沼特定土地区画整理事業」!!野村不動産のマンションやイオンタウンの複合商業施設を建設へ!!
アルティーリ千葉の新たなホームアリーナとなる「千葉県立幕張海浜公園Aブロックアリーナ計画」!!遂にボーリング調査に着手!!
名古屋市科学館「鉄道ひろば」は2026年3月28日(土)に一般公開!!B6形蒸気機関車を圧縮空気により動態展示へ!!
JR横浜線相模原駅周辺を高架化する「相模原駅北口地区のまちづくりに伴うJR横浜線の連続立体交差事業」!!令和8年度に予備調査を実施へ!!
2026年3月14日(土)に開業するJR山陽本線の姫路駅~英賀保駅間に整備された新駅「手柄山平和公園」駅!!ひめじスーパーアリーナとデッキで直結!!
歴史的建造物と高層ビルが融合! 都市開発マニアが案内する「丸の内建築ツアー」 が丸の内LOVE WALKERに掲載!!第26回こいつがあるから有楽町はおもしろい! ”エンタメの街”という色付けの発信地「有楽町マリオン」はいかにして建てられたのか?
名古屋高速道路新洲崎ジャンクション(JCT)に新たな出入口を設置する「(仮称)新洲崎出入口新設事業」!!名駅と高速道路ネットワークとの結節機能強化へ!!
官民共創スペース「E:N BASE(エン・ベース)」も入る「愛媛県庁第二別館」が間もなく竣工!!歴史的建造物・愛媛県庁本館と調和した新庁舎に!!
遂に都市計画道路・笹島線(東側区間)が姿を現した名駅とささしまライブエリアの結節点で進む「名駅南地区まちづくり」!!ポルシェアプルーブド&サービスセンター名古屋も2026年開業へ!!
大曽根駅前に「東横イン」によるホテル計画浮上!!大曽根地区総合整備事業や高架下商業施設の刷新が進み、名古屋の新たな都心ターミナル形成へ!!
新鎌ヶ谷駅北西側一帯を大規模に開発する構想「新鎌ケ谷駅西側地区」!!北千葉道路の延伸整備や緑道ゾーンで進む公園整備!!
芝田1丁目計画の事業実施に向けて2026年1月24日(土)から大阪梅田駅・神戸線の列車停止位置を約14メートル移動へ!!日本最大の頭端式ターミナル駅の改良が遂に着手!!
優先交渉権者が選定された「旧岐阜県庁舎利活用事業」!!みんなの森 ぎふメディアコスモスや岐阜市役所新庁舎も立地する司町エリアがますます魅力的に!!
JR予讃線松山駅周辺約2.4kmを高架化する「JR松山駅付近連続立体交差事業」!!長屋門モチーフと木ルーバーが印象的な新高架駅、まもなく事業完了!!
星が丘ボウル跡地で建設が進む「(仮称)星が丘ボウル跡地プロジェクト」!!椙山女学園大学や名古屋市のアクティブライブラリー、ブランズ星が丘テラスが入る複合施設に!!
神戸ウォーターフロントグランドデザインに基づき、「京橋地区」の埋め立てを2026年度に着手!!賑わい施設導入や水際プロムナードの整備へ!!
ヤマハ発動機本社エリアで2棟の新社屋建設へ!!鎌田第一土地区画整理事業など2020年開業のJR東海道本線御厨駅周辺で進む都市開発!!
愛知県小牧市・検討が進む名鉄小牧駅周辺の再整備計画「小牧駅前広場等整備」!!名鉄小牧駅ビル存続案と現ビル解体・複合施設新設案が公表!!
横須賀市久里浜地区で構想されている大規模な都市再生整備計画「京急久里浜駅周辺地区市街地総合再生計画」・「 JR久里浜駅周辺地域」!!
2026年春開業の「セトレ名古屋(仮称)」やコミュニティ拠点の整備が進むささしまライブ・中川運河堀止地区開発「NAKAGAWA CANAL DOORS(仮称)」!!

京橋三丁目東地区第一種市街地再開発事業

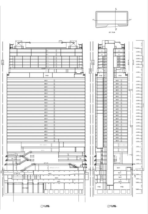
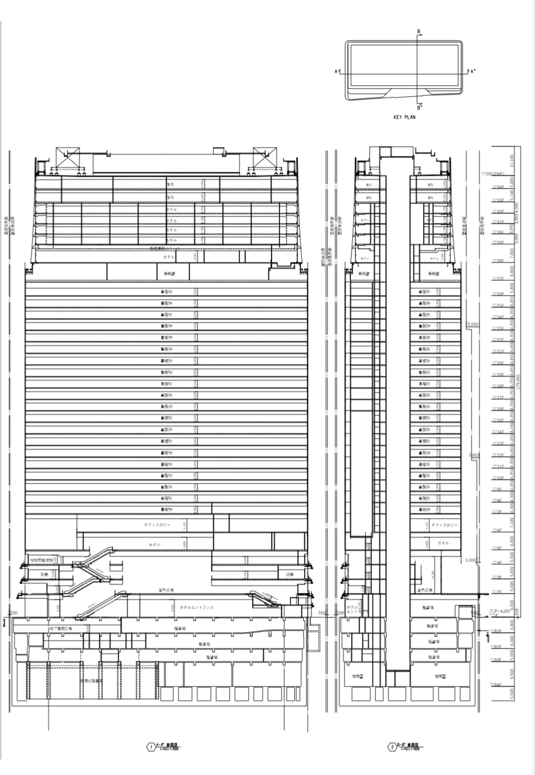
京橋三丁目東地区第一種市街地再開発事業は、東京都中央区京橋三丁目に建設される地上35階、地下4階、高さ179.950mの超高層ビルです。立地は、南側をTokyo Sky Corridor、東側を区道440号、北側を区道711号、西側を国道15号に囲まれた一帯に位置しています。

再開発区域では、老朽化した都市基盤の更新や土地利用の高度化、歩行空間の環境整備などが課題となっています。これらの課題に対応するため、地下歩行者通路やバリアフリー動線、歩行者滞留空間などを整備し、京橋エリアと周辺地域を結ぶ広域的な回遊性の向上を図ります。また、アートやものづくり文化の発信・交流拠点、国際水準の宿泊施設などを導入することで、国際競争力の向上と地域の活性化を目指すものとされています。さらに、一時滞在施設や災害時支援機能、分散型エネルギーシステムの導入により、防災対応力の強化と環境負荷の低減を実現し、持続可能なまちづくりを推進する計画です。

施設構成は、地下4階~地上2階に駐車場・機械室(DHC/CGS等)、地下1階~地上3階に店舗、地上1階・5階にホテル、2階・4階に地域貢献施設、4階に事務所、5階~6階に機械室、6階にオフィスロビー、7階~26階に事務所、27階に機械室、28階~32階にホテル、33階~34階に住宅、35階~塔屋1階に機械室となります。

建築主は京橋三丁目東地区市街地再開発組合、参加組合員は東京建物株式会社、日本郵政不動産株式会社、事業コンサルタントは都市ぷろ計画事務所、基本設計は株式会社日本設計、実施設計は日本設計・鹿島共同企業体、特定業務代行者は鹿島建設株式会社です。着工は2026年6月、竣工は2030年5月末となっています。

出典・引用元

東京都 京橋三丁目東地区市街地再開発組合設立を認可
内閣府国家戦略特別区域会議 第23回 東京都都市再生分科会 配布資料 資料1 京橋三丁目東地区都市計画(素案)の概要
東京建物株式会社 (仮称)京橋三丁目東地区市街地再開発事業都市計画決定のお知らせ
中央区 4月11日銀座地区まちづくり協議会 資料4 京橋三丁目東地区の計画概要について
建設通信新聞 京橋三丁目東地区組合/鹿島で既存解体着手/再開発施設は6月着工

過去の建設状況

→過去の建設状況


出典:東京建物株式会社/東京都

概要

名称 京橋三丁目東地区第一種市街地再開発事業
計画名 京橋三丁目東地区第一種市街地再開発事業
所在地 東京都中央区京橋三丁目地内
用途 事務所、ホテル、店舗、住宅、地域貢献施設、駐車場 等
階数 地上35階、地下4階、塔屋1階
高さ 179.950m
構造 鉄骨造、一部鉄筋コンクリート造、鉄骨鉄筋コンクリート造
基礎工法
敷地面積 約6,820㎡
建築面積 約5,800㎡
延床面積 約164,900㎡
着工 2026年6月
竣工 2030年5月末
建築主 京橋三丁目東地区市街地再開発組合
参加組合員:東京建物株式会社、日本郵政不動産株式会社
設計 事業コンサルタント:都市ぷろ計画事務所
基本設計:株式会社日本設計
実施設計:日本設計・鹿島共同企業体
施工 特定業務代行者:鹿島建設株式会社
最寄駅 東京メトロ銀座線「京橋」駅、都営浅草線「宝町」駅、JR「東京」駅
備考 ▼施設構成
地下4階~地上2階:駐車場、機械室(DHC/CGS等)
地下1階~地上3階:店舗
地上1階、5階:ホテル
2階・4階:地域貢献施設
4階:事務所
5階~6階:機械室
6階:オフィスロビー
7階~26階:事務所
27階:機械室
28階~32階:ホテル
33階~34階:住宅
35階~塔屋1階:機械室
 
 
 

位置図

区域図

出典:内閣府

配置図

出典:内閣府

断面図

出典:内閣府
出典∶東京都

2025年12月既存建築物解体状況

南西側から見た京橋三丁目東地区第一種市街地再開発事業の建設地の様子です。2025年12月時点では、区域が仮囲いで覆われて既存建築物の解体除去が始まりました。

 

  

西側から見た京橋三丁目東地区第一種市街地再開発事業の建設地の様子です。

 

 

西側から見た京橋三丁目東地区第一種市街地再開発事業の建設地の様子です。

国際水準の宿泊施設

本地区では、多くの観光客やビジネス来訪者に対応する国際水準の宿泊施設(約17,000㎡)を整備します。Tokyo Sky Corridorへのアクセス性を考慮し、地域全体の国際競争力を高めることを目的としています。施設内には高水準の客室や付帯施設(ラウンジ・レストラン・フィットネス・プール等)を設置し、外国人観光客やビジネスワーカーに対応します。東京駅・銀座周辺における宿泊施設不足の解消にも資する計画です。

アートセンター

京橋エリアは、区道440号線(骨董通り)を中心に画廊やギャラリーが集積するアート・ものづくり文化の拠点です。再開発により若手アーティストの育成や発信、交流機会の提供を目的とした「(仮称)京橋アートセンター」が整備されます。中央通りやSky Corridorからアクセス可能な立地により、来街者が気軽にアートに触れられる場を提供します。

アートセンターでは、作品展示・販売、イベント開催、アーティスト同士の交流、外部専門家との連携による批評やサポートなど、多角的な活動が可能です。また、周辺地区との連携により、広域的なにぎわいを創出し、京橋全体での文化的価値向上に寄与します。

 

北西側から見た京橋三丁目東地区第一種市街地再開発事業の建設地の様子です。

 

 

出典:東京建物株式会社/内閣府
歩行者ネットワーク/地下通路整備

再開発区域内では、広域的な回遊性を強化する都市基盤整備が中心課題となっています。特に、Tokyo Sky Corridorや駅・周辺街区との連続性を意識した歩行者ネットワークの形成に力を入れています。地下歩行者通路や地下駅前広場の整備により、東京駅から京橋駅までの回遊性を向上させるとともに、中央通りや区道440号線から視認性の高い縦動線を設置することで、バリアフリーかつ分かりやすい動線空間を確保するものとしています。

縦動線はエスカレーターやエレベーターを活用し、地上からTokyo Sky Corridorまでスムーズに人々を誘導する設計としています。さらに、屋内広場や接続デッキを活用した滞留空間を整備することで、歩行者が自然に集まり、にぎわいを生む拠点となるよう配慮しているとのことです。広場空間は視認性や開放性を重視し、階層的な空間構成によって、周辺まちづくりと一体的な都市の魅力向上を図ります。特に区道549号線を歩行者専用道路として整備し、沿道に店舗や緑化を施すことで、安全で快適な道路空間を形成するものとされています。

 

出典:東京建物株式会社/内閣府

京橋エリアでは、銀座エリアとの連続性を意識した歩行者滞留空間の整備が進められています。中央通り沿いには約500㎡の滞留空間を設置し、通行者が自然に立ち寄れる空間を創出することで、新たなにぎわいの拠点を形成します。歩道や歩道状空地の整備、明るく快適な通り景観の演出、連続的な街灯設置、案内サインの設置などにより、安全かつ歩いて楽しい道路空間を実現しています。また、既存の歩行者空間や沿道店舗と連携し、にぎわいの連続性を保つ計画です。

Tokyo Sky Corridorとの接続部分には、立体的な緑空間や広場空間を設け、歩行者が視覚的にも楽しめる設計が行われます。地上・中2階・1階・地下1階の各階層を通じた立体的な歩行者ネットワークは、エスカレーター・エレベーターを含むユニバーサルデザインを考慮した構成で、都市空間の魅力を段階的に高めるものとされています。

 

北東側から見た京橋三丁目東地区第一種市街地再開発事業の建設地の様子です。

 

 

区域内の道路も閉鎖されていました。

防災対策

地域の防災対応力向上を目的として、帰宅困難者向けの一時滞在施設(約1,500㎡)や防災備蓄倉庫(約150㎡)を整備します。さらに、災害時における安定的なエネルギー供給のため、コージェネレーションシステムや非常用発電機の設置、浸水対策の実施が計画されています。地域住民との防災訓練を平時から実施し、災害発生時にも円滑な対応ができる体制を構築します。

環境性能

建物全体の省エネルギー化やエネルギー効率化を図るため、高性能ガラスや外装工夫、LED照明、蓄熱槽付き地域冷暖房施設(DHC)などを導入します。さらに、再生可能エネルギーの活用やBEMSの導入、自然採光や外気冷房の活用により、エネルギー使用量とCO₂排出量の削減を目指します。事務所用途のCO₂排出原単位は48kg-CO₂/m²·年以下を目標とし、ゼロエミッション東京(2050年CO₂実質ゼロ)の実現に寄与します。

 

南東側から見た京橋三丁目東地区第一種市街地再開発事業の建設地の様子です。

 

 

東京高速道路KK線再生事業「Tokyo Sky Corridor」

出典:東京都

Tokyo Sky Corridorは、KK線上部空間を活用した緑豊かな歩行者空間であり、中央通りとの交差部に新たな都市視点場を創出します。西京橋ビル・東京橋ビル・新京橋ビルの上部空間を活用し、眺望や滞留空間の設えを設置することで、訪れる人々が都市景観を楽しめる仕組みです。また、地上とSky Corridorを結ぶ縦動線の整備により、駅や広場、商業施設との回遊性を確保しています。これにより、都市の中で自然に人が集まり、にぎわいが拡大する都市空間を形成します。

 

首都高速道路都心環状線の交通機能確保に向けて、新京橋連結路(地下)が整備されます。八重洲線と接続するKK線の大型車非対応問題を解消し、新たな都心環状ルートとしての機能を担います。事業スキームは関係者協力型で、地元まちづくりとの連携を重視し、段階的な事業化が進められます。平面・断面イメージに基づき、既存公共用地やスロープを活用した縦動線設置により、歩行者ネットワークとにぎわい空間を結びつけます。

 

「Tokyo Sky Corridor」には、全線にわたる緑豊かな歩行者空間や視点場の設置、階段・エレベーターを含む縦動線整備により、都市景観と回遊性を向上させます。Sky Corridor整備は、地域のにぎわいや都市価値向上と連動し、2030年代から2040年代にかけて段階的に完成を目指すものとされています。周辺まちづくりとの連携により、広域的な歩行者ネットワークを構築する計画です。

 

Google Earth

最終更新日:2025年12月30日

タイトルとURLをコピーしました