最新の都市開発ニュース
人口増加率全国トップクラスで住みたい街ランキング急上昇のつくば市で新たな大規模マンション計画浮上!!公務員宿舎跡地90街区に建設される「(仮称)つくば市吾妻2丁目計画 新築工事」!!
愛知県長久手市・旧し尿処理施設「香流苑」跡地に総戸数256戸の大規模マンション「市有地(上川原地内)活用」!!藤が丘駅徒歩圏に2030年3月完成へ!!
静岡市のJR清水駅前で計画が進む高層複合庁舎「新清水庁舎建設基本計画」!!PPP手法を採用して行政機能のみならずホテルやオフィス、商業施設も整備へ!!
遂に公式サイトも公開されて着工した(仮称)村岡新駅近くで建設が進む総戸数645戸の大規模マンション「ルネ鎌倉深沢」!!隣接地に「(仮称)鎌倉梶原商業施設」の建設も進む!!
JR東静岡駅北口市有地に建設される約1万席規模のアリーナ「静岡市アリーナ整備・運営事業」!!NTTドコモを代表とするグループが落札し、2030年4月の供用開始を目指す!!
流山おおたかの森駅前の流山おおたかの森S・Cを増築する「流山おおたかの森S・C増築計画」!!2027年完成へ向け商業機能をさらに拡充、森のタウンセンターが新たな進化へ!!
松山駅周辺交通結節点整備としてバスタプロジェクトも進む松山駅周辺約16.7haの大規模開発「松山駅周辺土地区画整理事業」!!西口ではマンション計画も浮上し、路面電車の延伸計画も!!
千住大橋駅前に賃貸住宅と商業施設の複合ビルを建設する「千住大橋駅前用地活用事業」!!大和ハウス工業などにより建設が進められ、2029年4月頃の竣工を目指す!!
JR松山駅南西側の車両基地跡地に5,000席以上アリーナを建設する「松山市車両基地跡地広域交流拠点施設」!!スポーツ・文化・防災を結節する新たな複合都市拠点構想が本格始動!!
愛知県知多市・名鉄常滑線朝倉駅西口一帯を3街区に分けて大規模に更新する「朝倉駅周辺整備事業」!!新市庁舎やホテル、図書館などを集積した新たな都市拠点に!!
竹ノ塚駅東口のURの団地や竹ノ塚T BOX一帯を大規模に再開発する「竹ノ塚駅東口地区再開発」!!令和8年度以降の都市計画決定を見据えて検討が進む!!
遂に日本一高いスタバが記録更新へ!!東京スカイツリーイーストタワー30階に「スターバックス リザーブ® カフェ東京スカイツリータウン30F店」が2026年3月10日(火)オープン!!
松山市中心市街地・大街道に建つ伊予鉄会館を建て替える「(仮称)伊予鉄一番町センタービル新築計画」!!2026年春に既存建物の解体工事に着手して2028年末の竣工へ!!
香川県丸亀市・丸亀城北側一帯に都市拠点を形成する「丸亀市大手町地区4街区南街区再編整備」!!新市民会館のTHEATRE MAdo(シアターマド)も令和8年9月6日に開館へ!!
東京都東村山市・興和 東京創薬研究所跡地で建設が進む複合開発「(仮称)東村山市野口町計画新築工事」!!ベイシアを核としたSCと大規模マンション建設へ!!
名鉄名古屋本線の名鉄岐阜駅~岐南駅間を高架化する「名鉄名古屋本線加納駅・茶所駅付近連続立体交差事業」!!加納駅と茶所駅は廃止され統合駅を新設へ!!
東武アーバンパークライン・大和田駅周辺約50.6haで進められている「大和田特定土地区画整理事業」!!令和8年4月には区域内に大和田小学校が開校へ!!
愛知県が中部国際空港(セントレア)の空港島東側約50haに統合型リゾート(IR)の誘致検討を再開!!大規模MICEや宿泊施設、商業・エンタメ、カジノなどを含む一体整備構想!!
「成田スカイアクセス線」鎌ヶ谷駅~印旛日本医大駅間を複々線化する構想が浮上!!旧成田新幹線計画跡地を活用し、都心~成田空港間の速達性と沿線利便性を大幅強化か!?
大阪府吹田市・万博記念公園駅前の約16.9haで計画が進む「(仮称)万博記念公園駅前周辺地区活性化事業」!!約1.8万人収容のアリーナを中心としたスポーツ・文化・商業・住宅が融合する複合都市拠点形成へ!!

日本橋一丁目中地区第一種市街地再開発事業/ウォルドーフ・アストリア東京日本橋

日本橋一丁目中地区第一種市街地再開発事業は、東京都中央区日本橋一丁目で建設中の地上4階、地下1階、高さ約32mの「A街区」、地上7階、地下2階、高さ31.62mの「B街区」、地上52階、地下5階、高さ283.96mの「C街区」から構成される超高層ビルです。立地は、東京メトロ・都営地下鉄「日本橋」駅至近、西側を中央通り、東側を昭和通り、北側を日本橋川に囲まれた一帯に建っていた「日本橋御幸ビル」や「日本橋西川ビル」、「COREDO日本橋ANNEX」、「江戸橋ビル」、「第二江戸橋ビル」、「野村証券本社本館、別館」など27棟の既存建築物の跡地に位置しています。

従前は、再開発区域中央の街区では細分化された敷地が混在し、地区全体としては建物の老朽化が進んでおり、立地ポテンシャルをいかした土地の有効利用が図られていない状況となっていました。このため、土地の集約化と街区再編による土地の高度利用を図り、高規格な業務機能・商業機能・業務支援機能等の一体整備による複合機能集積地の形成、地上・地下の歩行者ネットワークの強化による回遊性の創出、歴史的建築物の保全活用、日本橋川沿いの良好な水辺環境の創出及び都市防災機能の強化などにより、国際競争力を備え日本橋エリアの魅力・活力を向上する都市機能の更新を行うものとして再開発事業が進められています。

施設構成は、「A街区」の地下1階に機械室、地上1階にエントランスホール、1階~2階に店舗、3階~4階に事務所、R階に屋外機械置場、「B街区」の地下2階に電気室、地下1階に機械室・ピット、地上1階に駐車場、住宅共用、1階~7階に店舗、4階~7階に住宅、R階に屋外機械置場となります。
また、「C街区」の地下5階~地下4階に設備、機械室、地下4階~地下2階に駐車場、地下1階~地上4階に店舗、地上1階にエントランスホール、5階~8階にカンファレンス施設、7階~8階にビジネス支援施設、9階に設備、機械室、10階に低層スカイロビー、11階~20階に事務所、21階に設備、機械室、22階に高層スカイロビー、23階~38階に事務所、39階に設備、機械室、40階にホテルロビー、スパ、40階~46階にホテル「ウォルドーフ・アストリア東京日本橋」、47階に設備、機械室、48階に居住施設ロビー、48階~51階にサービスアパートメント「ウォルドーフ・アストリア・レジデンス東京日本橋」、52階~PH3階に設備、機械室となります。

建築主は日本橋一丁目中地区市街地再開発組合、参加組合員は三井不動産株式会社、野村不動産株式会社、野村ホールディングス株式会社、設計は株式会社日建設計、施工はA街区が株式会社大林組、B街区が清水建設、錢高組共同企業体、C街区が日本橋一丁目中地区第一種市街地再開発事業建設共同企業体です。

既存建築物解体着手は2020年11月10日、着工はB街区が2022年1月1日、C街区は2021年9月1日、竣工は2026年3月末、A街区が2026年3月末、B街区が2026年3月31日、C街区が2026年3月31日となっています。

出典・引用元

三井不動産株式会社/三井不動産レジデンシャル株式会社/ヒルトン 三井不動産レジデンシャルとヒルトンが契約締結 ヒルトンの最上級ラグジュアリーブランドの名を冠したアジア太平洋地域初のレジデンス「ウォルドーフ・アストリア・レジデンス東京日本橋」誕生
三井不動産株式会社/東京電力エナジーパートナー株式会社 三井不動産・東京電力エナジーパートナー、初の連携プロジェクト「日本橋一丁目スマートエネルギープロジェクト」が着工~既存ビル含めた約50万m2の周辺地域へ、電気・熱の安定供給事業~
三井不動産株式会社/野村不動産株式会社 日本橋川沿い再開発第一弾、新たなランドマークとなる日本橋エリア最高・最大級のミクストユース開発 「日本橋一丁目中地区第一種市街地再開発事業」着工 ZEB/ZEH認証・DBJ Green Building認証の取得など、次世代の新たな街づくりが始動
三井不動産株式会社 ヒルトンの最上級ラグジュアリーブランド「ウォルドーフ・アストリア東京日本橋」が日本初進出~三井不動産とヒルトンがブランディング及びマネジメント契約を締結、2026年に開業予定~
三井不動産株式会社 三井不動産の推進する日本橋の街づくり「日本橋再生計画」新ステージ始動 水辺の再生を含む3つの重点構想とビジョンを発表
三井不動産株式会社/東京電力エナジーパートナー株式会社 三井不動産・東京電力エナジーパートナー、初の連携プロジェクト「日本橋一丁目スマートエネルギープロジェクト」が着工
内閣府 資料1  都市再生特別地区(日本橋一丁目中地区)都市計画の概要
中央区 中央区指定文化財6 日本橋野村ビルディング旧館

過去の建設状況

→過去の建設状況


出典:三井不動産株式会社/野村不動産株式会社

概要

名称 日本橋一丁目中地区第一種市街地再開発事業/ウォルドーフ・アストリア東京日本橋
サービスアパートメント名:ウォルドーフ・アストリア・レジデンス東京日本橋
ホテル名:ウォルドーフ・アストリア東京日本橋
計画名 日本橋一丁目中地区第一種市街地再開発事業/日本橋一丁目中地区再開発
所在地 東京都中央区日本橋一丁目30~32番
A街区:ー
B街区:東京都中央区日本橋一丁目31番
C街区:東京都中央区日本橋一丁目32番
用途 A街区:事務所、店舗等
B街区:店舗、共同住宅、駐車場等
C街区:事務所、店舗、ホテル、共同住宅、駐車場等
D街区:事務所、店舗、ビジネス支援施設、駐車場等
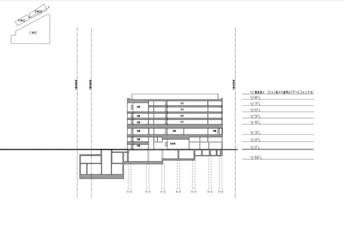
階数 A街区:地上4階、地下1階
B街区:地上7階、地下2階
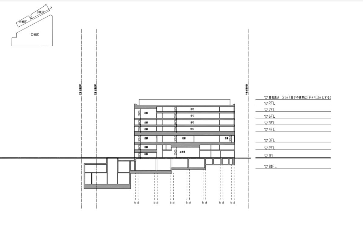
C街区:地上52階、地下5階、塔屋3階
高さ A街区:約32m
B街区:31.62m
C街区:283.96m
構造 A街区:鉄骨造、鉄骨鉄筋コンクリート造
B街区:鉄骨鉄筋コンクリート造、一部鉄筋コンクリート造、鉄骨造
C街区:鉄骨造、一部鉄筋コンクリート造、鉄骨鉄筋コンクリート造
基礎工法 A街区:ー
B街区:直接基礎
C街区:杭基礎、直接基礎
総戸数 B街区住宅:51戸
C街区サービスアパートメント:71戸
客室数 197室
敷地面積 街区全体:約24,600㎡
A街区:約1,370㎡
B街区:2,064.74㎡
C街区:15,564.16㎡
D街区:約5,610㎡
建築面積 A街区:約1,200㎡
B街区:1,194.98㎡
C街区:12,590.79㎡
延床面積 街区全体:約499,000㎡ (中央区資料:約385,000㎡)
A街区:約5,200㎡
B街区:6,573.85㎡
C街区:374,003.62㎡
D街区:約93,000㎡
着工 A街区:ー
B街区:2022年1月1日
C街区:2021年9月1日

既存建築物解体着手:2020年11月10日
竣工 2026年3月末
A街区:2026年3月末
B街区:2026年3月31日
C街区:2026年3月31日
建築主 日本橋一丁目中地区市街地再開発組合
参加組合員:三井不動産株式会社、野村不動産株式会社、野村ホールディングス株式会社
設計 株式会社日建設計
都市計画・事業コンサルタント・基本設計・実施設計・監理:日建設計
デザインアーキテクト:株式会社日建設計、PELLI CLARKE PELLI ARCHITECTS,INC
施工 A街区:株式会社大林組
B街区:清水建設、錢高組共同企業体
C街区:日本橋一丁目中地区第一種市街地再開発事業建設共同企業体(代表企業:清水建設株式会社)
最寄駅 東京メトロ銀座線、東西線、都営浅草線「日本橋」駅、JR、東京メトロ「東京」駅
備考 ▼施設構成
🔻A街区
地下1階:機械室
地上1階:エントランスホール
1階~2階:店舗
3階~4階:事務所
R階:屋外機械置場

🔻B街区
地下2階:電気室
地下1階:機械室・ピット
地上1階:駐車場、住宅共用
1階~7階:店舗
4階~7階:住宅
R階:屋外機械置場

🔻C街区
地下5階~地下4階:設備、機械室
地下4階~地下2階:駐車場
地下1階~地上4階:店舗
地上1階:エントランスホール
5階~8階:カンファレンス施設
7階~8階:ビジネス支援施設
9階:設備、機械室
10階:低層スカイロビー
11階~20階:事務所
21階:設備、機械室
22階:高層スカイロビー
23階~38階:事務所
39階:設備、機械室
40階:ホテルロビー、スパ
40階~46階:ホテル「ウォルドーフ・アストリア東京日本橋」
47階:設備、機械室
48階:居住施設ロビー
48階~51階:サービスアパートメント「ウォルドーフ・アストリア・レジデンス東京日本橋」
52階~PH3階:設備、機械室
 
 
 

位置図

標識

▼A街区 解体工事のお知らせ

▼B街区

▼C街区

配置図

出典:三井不動産株式会社/野村不動産株式会社

断面図

出典:三井不動産株式会社/野村不動産株式会社

 

▼A街区

出典:中央区

▼B街区

出典:中央区

▼C街区

出典:中央区

イメージパース

▼当初計画

出典:三井不動産株式会社/野村不動産株式会社

2026年1月建設状況

北西側から見た建設中の日本橋一丁目中地区第一種市街地再開発事業の様子です。

 

 

北西側から見た建設中の日本橋一丁目中地区第一種市街地再開発事業と日本橋の超高層ビル群の様子です。

 

 

出典:三井不動産株式会社/野村不動産株式会社

A街区は、1930年に建築家安井武雄による設計により竣工した日本橋野村ビル旧館を保存活用する事で、日本橋の伝統と文化を受け継ぎつつ地域全体のさらなる賑わい形成を図るものとされています。

 

日本橋川沿いの整備では、歴史的建造物の保存・活用と水辺環境の魅力向上を両立させることを目指したものとなります。旧館や本館の外壁を保存し、既存6・7階の復元や免震化、フロアの一体化を行うことで景観の風格を保ちながら、動線整備によって利便性向上が図られます。

また、川沿いのオープンスペースやプロムナード、親水広場を整備し、店舗やカフェを配置することで水辺のにぎわいと交流機能が導入されます。船着場の増設や護岸のセットバックにより舟運や回遊性を向上させ、水辺を活用したイベント開催や交流拠点形成にも資する空間として整備されます。こうして、日本橋川沿いの歩行者ネットワークを強化し、安全で快適な歩行環境とにぎわいある水辺空間を創出するものとされています。

 

B街区は、中央区指定有形文化財であるA街区との一体感ある景観を醸成し、日本橋川の水辺空間にふさわしいヒューマンスケールな街並み形成を行う計画です。C街区と地上3階レベルでデッキ接続し、日本橋川沿いの賑わいにつながる商業空間の創出や51戸の住戸が設けられます。

C街区は、エリア最大級のオフィスフロアとなるオフィスが入ります。10階~20階は基準階面積約1,900坪、22階~38階は基準階面積約1,300坪となり、10階と22階には屋外スカイガーデンが配置されます。 

 

ホテル「ウォルドーフ・アストリア東京日本橋」

48階~51階には、国内外のビジネスパーソンの中長期的な滞在にも対応し、コンシェルジュサービスも備えた約100戸の居住施設が入ります。39階~47階のホテルには、ヒルトンが運営する最上級ラグジュアリーブランド「ウォルドーフ・アストリア東京日本橋」が全197室入ります。ウォルドーフ・アストリアを象徴するラウンジ&バー「ピーコック・アレー」のほか、付帯施設には屋内プール、スパ、フィットネスセンター、宴会場、チャペルが設けられます。

 

出典:三井不動産株式会社/野村不動産株式会社
出典:三井不動産株式会社/野村不動産株式会社
商業施設

地下1階~4階は商業施設となり、にぎわいの軸となる商業ゾーンを形成するほか、隣接するD街区「日本橋一丁目三井ビルディング/COREDO 日本橋」とは地上3階、地下1階にて新たな連絡通路の接続と、D街区内の改修工事が行われ、既存商業施設とも融合した新たな商業空間を創出するものとされています。 

MICE施設

5階~8階には、都心最大規模を誇る MICE施設として国際会議等のビジネスイベントやアフターコンベンションに対応する最大収容人数約3,000人の2つの大型ホールと会議室、ビジネス交流機能が設けられます。 

 

出典:三井不動産株式会社/野村不動産株式会社
サービスアパートメント「ウォルドーフ・アストリア・レジデンス東京日本橋」

ウォルドーフ・アストリア・レジデンス東京日本橋は、三井不動産レジデンシャルとヒルトンの契約により誕生する、アジア太平洋地域初の「ウォルドーフ・アストリア・ホテルズ&リゾーツ」ブランドのレジデンスです。日本橋一丁目中地区再開発プロジェクトのメインタワー48階~51階に位置し、39階~47階に開業予定の「ウォルドーフ・アストリア東京日本橋」と連携して、居住者にきめ細やかなホテルサービスが提供されます。

専有面積は60㎡~430㎡の広さで、間取りは1LDK~4LDKの全71戸で構成され、東京駅至近・日本橋駅直結の利便性と、地上約250mからの眺望、周辺商業施設の充実によりラグジュアリーな生活環境を実現するものとしています。居住者専用の50階ロビーラウンジには屋外テラスやパーティーラウンジを備え、ホテル連携によるポーター、ランドリー、ハウスキーピング、出張シェフなど多彩なサービスを受けられるのも特徴です。入居開始は2027年秋の予定です。

 

出典:内閣府
CGS「日本橋一丁目スマートエネルギープロジェクト」

地下5階~地下4階には、三井不動産株式会社と東京電力エナジーパートナー株式会社が共同設立した三井不動産TEPCOエナジー株式会社により、エネルギー供給を行う「日本橋一丁目スマートエネルギープロジェクト」の自立分散型のエネルギーセンターが配置されます。新規再開発ビルに加え、既存の「日本橋一丁目三井ビルディング」や「日本橋野村ビルディング旧館」にもエネルギーを供給。ミクストユース型開発を支え、街の国際競争力を高めます。

また、大型コージェネレーションシステム(CGS)を採用し、都市ガスを活用することで停電時でも電力供給が可能。防災拠点としての機能も強化するものとされています。CGSの発電時に発生する廃熱を地域冷暖房に活用し、高効率なエネルギー利用を実現。AIを活用したエネルギーマネジメントシステムにより、最適な運転計画を立案し、CO2排出を約25%削減します。2026年度にエネルギー供給を開始予定とされており、三井不動産と東電EPによる初のスマートエネルギープロジェクトとして、持続可能な都市づくりと日本橋一丁目エリアの発展に貢献するものとされています。

 

出典:三井不動産株式会社/野村不動産株式会社
出典:内閣府
歩行者ネットワーク

歩行者ネットワークは、日本橋川沿いの回遊性を高めるため、地下鉄駅間の乗換え動線や既存の地上地下結節空間を活用・整備し、地下からデッキ、地上まで円滑に移動可能な結節空間を形成することで、東西方向の歩行者ネットワークを強化するとともに、安全性の向上とオープンスペースの拡充が図られます。また、親水広場やデッキ広場などの広場空間を整備することで、にぎわい創出にも資する歩行者環境を構築します。 

 

日本橋再生計画第3ステージは、三井不動産が推進する街づくりの新たな段階で、昭和通りを境にWESTエリアとEASTエリアを統合した「GREATER日本橋」を舞台に展開されています。「共感・共創・共発」をスローガンに、オープンで多様な仲間を巻き込み、江戸時代の中心地としての革新性を現代に再現することを目指しているとのことです。

第3ステージでは、「豊かな水辺の再生」、「新たな産業の創造」、「世界とつながる国際イベントの開催」、の3つを重点構想としています。日本橋川沿いの約6.7haの再開発や首都高速地下化により、幅約100m・長さ約1,200mの親水空間が整備され、東京駅周辺と一体化したウォーカブルネットワークと舟運ネットワークが実現します。また、ライフサイエンス、宇宙、モビリティ、食を戦略領域とした産業創造や、街全体を活用した国際イベント開催により、世界に向けた新しい価値創出が推進されます。

 

A街区

南西側から見た整備が進められている日本橋一丁目中地区第一種市街地再開発事業 A街区の様子です。

 

 

出典:内閣府/三井不動産株式会社/野村不動産株式会社

A街区は、地上4階、地下1階、高さ約32mの日本橋野村ビル旧館を保存活用が図られます。

 

 

南東側から見た整備が進められている日本橋一丁目中地区第一種市街地再開発事業 A街区の様子です。

 

 

A街区とB街区の間には、親水空間の広場が整備されます。

 

 

北西側から見た整備が進められている日本橋一丁目中地区第一種市街地再開発事業 A街区の様子です。

 

 

B街区

南東側から見た整備が進められている日本橋一丁目中地区第一種市街地再開発事業 B街区の様子です。

 

 

B街区は、地上7階、地下2階、高さ31.62mの商業施設や住宅から構成される中層ビルとなります。

 

 

北東側から見た整備が進められている日本橋一丁目中地区第一種市街地再開発事業 B街区の様子です。

 

 

南西側から見た整備が進められている日本橋一丁目中地区第一種市街地再開発事業 B街区の様子です。

 

 

C街区

北西側から見た建設中の日本橋一丁目中地区第一種市街地再開発事業 C街区の様子です。撮影時は、既に上棟しており、タワークレーンも撤去されていました。

 

 

C街区は、ホテルやオフィス、サービスアパートメント、商業施設等から構成される地上52階、地下5階、高さ283.96mの超高層複合ビルとなります。

 

 

北西側から見た建設中の日本橋一丁目中地区第一種市街地再開発事業 C街区の様子です。

 

 

高層部分でセットバックしている外観が特徴的です。

 

 

北西側から見上げた建設中の日本橋一丁目中地区第一種市街地再開発事業 C街区の様子です。

 

 

低層部分は、アールを描いたガラスカーテンウォールの外観ファサードが特徴となっています。

 

 

北西側から見た建設中の日本橋一丁目中地区第一種市街地再開発事業 C街区の低層部分の様子です。

 

 

金属調の装飾が美しいデザインとなっています。

 

 

西側から見た建設中の日本橋一丁目中地区第一種市街地再開発事業 C街区の様子です。

 

 

南西側から見た建設中の日本橋一丁目中地区第一種市街地再開発事業 C街区の様子です。

 

 

日本橋一丁目中地区第一種市街地再開発事業とコレド日本橋を結ぶ連絡通路も新設されています。

 

 

地下1階レベルで都営浅草線「日本橋」駅と直結する計画となっています。

 

 

南東側から見た建設中の日本橋一丁目中地区第一種市街地再開発事業 C街区の様子です。

 

 

南東側から見た建設中の日本橋一丁目中地区第一種市街地再開発事業 C街区の低層部分の様子です。

 

 

北東側から見た建設中の日本橋一丁目中地区第一種市街地再開発事業 C街区の様子です。

 

 

北側から見た建設中の日本橋一丁目中地区第一種市街地再開発事業 C街区の様子です。

 

 

日本橋三越や日本橋三井タワーが建ち並ぶ日本橋室町付近から見た建設中の日本橋一丁目中地区第一種市街地再開発事業 C街区の様子です。

 

 

日本橋一丁目中地区第一種市街地再開発事業は2026年3月末竣工です。

最終更新日:2026年1月24日

タイトルとURLをコピーしました