最新の都市開発ニュース
幕張本郷駅近くで進められている約37haの大規模開発プロジェクト「鷺沼特定土地区画整理事業」!!野村不動産のマンションやイオンタウンの複合商業施設を建設へ!!
アルティーリ千葉の新たなホームアリーナとなる「千葉県立幕張海浜公園Aブロックアリーナ計画」!!遂にボーリング調査に着手!!
名古屋市科学館「鉄道ひろば」は2026年3月28日(土)に一般公開!!B6形蒸気機関車を圧縮空気により動態展示へ!!
JR横浜線相模原駅周辺を高架化する「相模原駅北口地区のまちづくりに伴うJR横浜線の連続立体交差事業」!!令和8年度に予備調査を実施へ!!
2026年3月14日(土)に開業するJR山陽本線の姫路駅~英賀保駅間に整備された新駅「手柄山平和公園」駅!!ひめじスーパーアリーナとデッキで直結!!
歴史的建造物と高層ビルが融合! 都市開発マニアが案内する「丸の内建築ツアー」 が丸の内LOVE WALKERに掲載!!第26回こいつがあるから有楽町はおもしろい! ”エンタメの街”という色付けの発信地「有楽町マリオン」はいかにして建てられたのか?
名古屋高速道路新洲崎ジャンクション(JCT)に新たな出入口を設置する「(仮称)新洲崎出入口新設事業」!!名駅と高速道路ネットワークとの結節機能強化へ!!
官民共創スペース「E:N BASE(エン・ベース)」も入る「愛媛県庁第二別館」が間もなく竣工!!歴史的建造物・愛媛県庁本館と調和した新庁舎に!!
遂に都市計画道路・笹島線(東側区間)が姿を現した名駅とささしまライブエリアの結節点で進む「名駅南地区まちづくり」!!ポルシェアプルーブド&サービスセンター名古屋も2026年開業へ!!
大曽根駅前に「東横イン」によるホテル計画浮上!!大曽根地区総合整備事業や高架下商業施設の刷新が進み、名古屋の新たな都心ターミナル形成へ!!
新鎌ヶ谷駅北西側一帯を大規模に開発する構想「新鎌ケ谷駅西側地区」!!北千葉道路の延伸整備や緑道ゾーンで進む公園整備!!
芝田1丁目計画の事業実施に向けて2026年1月24日(土)から大阪梅田駅・神戸線の列車停止位置を約14メートル移動へ!!日本最大の頭端式ターミナル駅の改良が遂に着手!!
優先交渉権者が選定された「旧岐阜県庁舎利活用事業」!!みんなの森 ぎふメディアコスモスや岐阜市役所新庁舎も立地する司町エリアがますます魅力的に!!
JR予讃線松山駅周辺約2.4kmを高架化する「JR松山駅付近連続立体交差事業」!!長屋門モチーフと木ルーバーが印象的な新高架駅、まもなく事業完了!!
星が丘ボウル跡地で建設が進む「(仮称)星が丘ボウル跡地プロジェクト」!!椙山女学園大学や名古屋市のアクティブライブラリー、ブランズ星が丘テラスが入る複合施設に!!
神戸ウォーターフロントグランドデザインに基づき、「京橋地区」の埋め立てを2026年度に着手!!賑わい施設導入や水際プロムナードの整備へ!!
ヤマハ発動機本社エリアで2棟の新社屋建設へ!!鎌田第一土地区画整理事業など2020年開業のJR東海道本線御厨駅周辺で進む都市開発!!
愛知県小牧市・検討が進む名鉄小牧駅周辺の再整備計画「小牧駅前広場等整備」!!名鉄小牧駅ビル存続案と現ビル解体・複合施設新設案が公表!!
横須賀市久里浜地区で構想されている大規模な都市再生整備計画「京急久里浜駅周辺地区市街地総合再生計画」・「 JR久里浜駅周辺地域」!!
2026年春開業の「セトレ名古屋(仮称)」やコミュニティ拠点の整備が進むささしまライブ・中川運河堀止地区開発「NAKAGAWA CANAL DOORS(仮称)」!!

シティタワーズ上板橋イースト/セントラル

シティタワーズ上板橋イースト/セントラルは、東京都板橋区上板橋一丁目及び二丁目に建設中の地上26階、地下1階、高さ98.00m、総戸数315戸の「イースト」、地上19階、地下1階、高さ60.00m、総戸数112戸の「セントラル」、地上5階、高さ23.200mの「南街区」から構成される超高層タワーマンションです。

再開発区域は、東武東上線「上板橋」駅の南側に隣接する約1.7haの地区となっており、地区の南端には、川越方面と東京都心部とを結ぶ川越街道が位置しています。従前の駅周辺地域は、狭隘な道路が多く、木造住宅や店舗併用住宅などが密集しており、土地の高度利用が図られていない状況となっていました。また、駅前への取付け道路が未整備であり、緊急時の交通アクセス困難など都市機能を果たせない状況が課題とされていました。これら課題解決を図るため、再開発事業により川越街道から駅前への幅員16メートルのアクセス道路及び面積約3,900平方メートルの交通広場を整備するとともに、建物の不燃化、土地の高度利用を行うことで、防災面の強化、商店街の活性化を図るものとされています。

施設構成は、「イースト」は地下1階に駐車場および機械室、地上1階~3階にエントランスおよび店舗、2階に駐輪場、4階~26階に住宅、屋上階に設備スペース、塔屋階に塔屋となります。「セントラル」は地下1階に駐輪場および集会場、地上1階に店舗および駐車場、2階~19階に住宅となります。「南街区」は1階に店舗および駐車場、2階~5階に事務所となります。

シティタワーズ上板橋イーストの専有面積は55.32㎡~70.64㎡、間取りは2LDK~3LDK、共用施設にはグランドエントランスホール、エントランスホール、コーチエントランス、ライブラリー、パーティルーム、キッズルーム、テレワークラウンジ、フィットネスルーム、オーナーズスイートが入ります。また、シティタワーズ上板橋セントラルの専有面積は39.24㎡~70.06㎡、間取りは1LDK~3LDKとなります。

建築主は上板橋駅南口駅前東地区市街地再開発組合で、参加組合員として住友不動産株式会社が参画しています。設計は、基本設計を株式会社INA新建築研究所が担当し、実施設計は大成建設・長谷工コーポレーション・越野建設・大成ロテック共同企業体です。施工及び実施設計については、イーストを大成建設株式会社、セントラルを株式会社長谷工コーポレーションとなっています。
着工はイーストが2025年1月1日、セントラルが2025年4月1日、南街区が2025年1月となっており、竣工はイーストが2028年5月中旬、セントラルが2027年9月上旬、南街区が2028年12月となります。

出典・引用元

シティタワーズ上板橋イースト/セントラル 公式サイト

東京都 上板橋駅南口駅前東地区市街地再開発組合の設立を認可
板橋区 上板橋駅南口駅前地区第一種市街地再開発事業(概要)
上板橋駅南口駅前東地区市街地再開発組合/住友不動産株式会社/大成建設株式会社 「上板橋駅南口駅前東地区市街地再開発事業」再開発組合設立のお知らせ

過去の建設状況

→過去の建設状況


出典∶シティタワーズ上板橋イースト/セントラル

概要

名称 東街区:シティタワーズ上板橋イースト
中街区:シティタワーズ上板橋セントラル
計画名 イースト:上板橋駅南口駅前東地区第一種市街地再開発事業 東街区
セントラル:上板橋駅南口駅前東地区第一種市街地再開発事業 中街区
所在地 イースト:東京都板橋区上板橋1丁目1001番地(地番)
セントラル:東京都板橋区上板橋1丁目1002番地(地番)
用途 イースト:住宅、店舗
セントラル:住宅、店舗
南街区:事務所、店舗
階数 イースト:地上26階、地下1階、塔屋2階
セントラル:地上19階、地下1階
南街区:地上5階
高さ イースト:98.00m(最高98.00m)/事業計画書:97.130m (軒高:96.530m)
セントラル:60.00m(最高60.00m)/事業計画書:59.920m (59.470m)
南街区:23.200m
構造 イースト:鉄筋コンクリート造、一部鉄骨造
セントラル:鉄筋コンクリート造
南街区:鉄骨造
基礎工法
総戸数 イースト:315戸(※非分譲住戸67戸含む)、その他 店舗13区画
セントラル:112戸
南街区:ー
敷地面積 イースト:4,128.03㎡
セントラル:1,175.58㎡
南街区:約560㎡
建築面積 イースト:2,832.68㎡
セントラル:710.42㎡
南街区:約370㎡
延床面積 イースト:37,641.73㎡
セントラル:10,334.58㎡
南街区:約1,730㎡
着工 イースト:2025年1月1日
セントラル:2025年4月1日
南街区:2025年1月
竣工 イースト:2028年5月中旬
セントラル:2027年9月上旬
南街区:2028年12月
建築主 上板橋駅南口駅前東地区市街地再開発組合
参加組合員:住友不動産株式会社
設計 実施設計:大成建設・長谷工コーポレーション・越野建設・大成ロテック共同企業体
基本設計:株式会社INA新建築研究所

イースト:大成建設株式会社
セントラル:株式会社長谷工コーポレーション
南街区:ー
施工 イースト:大成建設株式会社
セントラル:株式会社長谷工コーポレーション
南街区:ー
最寄駅 東武東上線「上板橋」駅 
備考 ▼施設構成
🔻イースト
地下1階:駐車場、機械室
地上1階~3階:エントランス、店舗
2階:駐輪場
4階~26階:住宅
R階:設備スペース
PH階:塔屋

🔻セントラル
地下1階:駐輪場、集会場
地上1階:店舗、駐車場
2階~19階:住宅

🔻南街区
1階:店舗、駐車場
2階~5階:事務所

▼シティタワーズ上板橋イースト
専有面積:55.32㎡~70.64㎡
間取り:2LDK~3LDK 
共用施設:グランドエントランスホール、エントランスホール、コーチエントランス、ライブラリー、パーティルーム、キッズルーム、テレワークラウンジ、フィットネスルーム、オーナーズスイート

▼シティタワーズ上板橋セントラル
専有面積:39.24㎡~70.06㎡
間取り:1LDK~3LDK 
共用施設:ー
 

位置図

標識

▼シティタワーズ上板橋イースト

▼シティタワーズ上板橋セントラル

区域図

出典∶板橋区

配置図

出典∶住友不動産株式会社

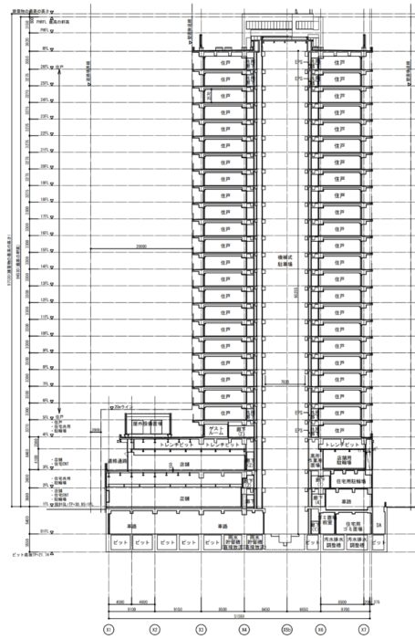
断面図

出典∶住友不動産株式会社

▼イースト

出典∶板橋区

▼セントラル

出典∶板橋区

▼南街区

出典∶板橋区

イメージパース

出典∶シティタワーズ上板橋イースト/セントラル

2026年1月建設状況

北西側から見た建設中のシティタワーズ上板橋イースト/セントラルの様子です。

 

 

北西側、上板南口銀座のゲートから見た建設中のシティタワーズ上板橋イースト/セントラルの様子です。

 

 

タワーの足元には、再開発事業と一体的に整備される緑地広場やオープンスペースが広がり、駅前に潤いと余白を生み出すランドスケープが計画されています。ヨウコウザクラやイロハモミジ、ソヨゴ、サツキツツジなど四季を感じられる植栽が施され、住民だけでなく街ゆく人々にも憩いの場を提供します。

駅に最も近い再開発エリアの中核として、イーストとセントラルという異なる個性を持つ2棟が並び立つことで、上板橋駅前の新たなシンボルとしての景観形成にも寄与するものとされています。住宅でありながら、街づくりの主役を担う存在となっている点が特徴です。

 

南側の国道254号線(川越街道)方面から上板橋駅南口駅前広場にかけて幅員16m、延長約210mの道路「板橋区画街路第8号線」が整備されます。

 

 

シティタワーズ上板橋イースト

南西側から見た建設中のシティタワーズ上板橋イーストの様子です。

 

 

北西側から見た建設中のシティタワーズ上板橋イーストの様子です。

 

 

北東側から見た建設中のシティタワーズ上板橋イーストの様子です。

 

 

シティタワーズ上板橋イーストは駅徒歩1分でペデストリアンデッキ直結、セントラル棟も徒歩2分という駅至近立地にあり、雨の日でも快適な動線が確保されています。3階に設けられたグランドエントランスは、木調の軒裏と大庇が印象的な重厚感あるデザインとなります。

 

広々としたグランドエントランスホールには上質なソファが配置され、落ち着いた迎賓空間を演出。さらに、各階はホテルライクな内廊下設計とされ、プライバシー性と快適性を両立しています。日常の動線から帰宅の瞬間まで、上質さが連続する空間構成となっています。

 

北側、上板橋駅ホームから見た建設中のシティタワーズ上板橋イーストの様子です。

 

 

出典∶シティタワーズ上板橋イースト/セントラル
出典∶シティタワーズ上板橋イースト/セントラル

シティタワーズ上板橋イースト/セントラルには、ライブラリーラウンジ、パーティルーム、キッズルーム、テレワークラウンジ、フィットネスルーム、オーナーズスイートといった多彩な共用施設が設けられています。

静かに読書や調べ物ができる空間から、家族や友人と集える場、在宅ワークや学習に集中できる個室ブース付きラウンジまで、暮らしのさまざまなシーンに対応しています。天候に左右されず遊べるキッズルームや、健康づくりを支えるフィットネスルームも備え、住まいの中で生活の質を高められる点が大きな魅力です。単なる居住空間にとどまらず、日々の時間を豊かに使える“生活拠点”としての価値が追求されています。

 

南東側から見た建設中のシティタワーズ上板橋イーストの様子です。

 

 

構造面では制震構造を採用し、地震時の揺れを軽減することで建物への負担を抑えています。非常用発電機、防火水槽、防災用井戸(予定)、非常用マンホールトイレ、炊き出しかまど兼用ベンチなど、災害時の生活継続を支える設備も多数整備されています。さらに環境性能面では、両棟ともにZEH-M Oriented仕様とされ、外皮断熱性能の強化と省エネ設備の導入により、住棟全体で一次エネルギー消費量を20%以上削減。BELS評価でも高水準を達成しており、安心・快適・環境配慮を兼ね備えた次世代型タワーレジデンスといえます。

 

シティタワーズ上板橋セントラル

南西側から見た建設中のシティタワーズ上板橋セントラルの様子です。

 

 

北西側から見た建設中のシティタワーズ上板橋セントラルの様子です。

 

 

北東側から見た建設中のシティタワーズ上板橋セントラルの様子です。

 

 

南東側から見た建設中のシティタワーズ上板橋セントラルの様子です。

 

 

南西側から見た建設中のシティタワーズ上板橋セントラルの様子です。タワークレーンが1基稼働していました。

 

 

建設工事が進むシティタワーズ上板橋イーストとセントラルの様子です。

 

 

南街区

南側から見た建設中の上板橋駅南口駅前東地区第一種市街地再開発事業 南街区の様子です。

 

 

北側から見た建設中の上板橋駅南口駅前東地区第一種市街地再開発事業 南街区の様子です。

 

 

駅前広場

再開発事業では合わせて約3,900㎡の駅前広場と、駅前広場の地下には約1,500台収容の公共自転車駐車場の整備も進められています。

 

 

整備が進む駅前広場の様子です。

最終更新日:2026年1月10日

タイトルとURLをコピーしました