最新の都市開発ニュース
「成田スカイアクセス線」鎌ヶ谷駅~印旛日本医大駅間を複々線化する構想が浮上!!旧成田新幹線計画跡地を活用し、都心~成田空港間の速達性と沿線利便性を大幅強化か!?
大阪府吹田市・万博記念公園駅前の約16.9haで計画が進む「(仮称)万博記念公園駅前周辺地区活性化事業」!!約1.8万人収容のアリーナを中心としたスポーツ・文化・商業・住宅が融合する複合都市拠点形成へ!!
デザインアンケートが実施されている東武アーバンパークライン・大和田駅「大和田駅の橋上駅舎化および南北自由通路の設置」!!橋上駅舎化のほか駅前広場整備も計画中!!
JR阪和線・津久野駅周辺で大規模な再整備計画「津久野駅周辺再整備」!!市街地住宅の更新による高層住宅建設や駅前広場、自由通路整備などの計画が進む!!
遂に構想が実現へ!!池袋駅東口と西口を高架レベルで結ぶ「池袋駅東西連絡通路(東西デッキ)」!!2026年度からは概略基本設計に着手予定!!
大阪府堺市北区・中百舌鳥駅で駅前広場と民間施設の整備を行う「中百舌鳥イノベーション創出拠点」!!駅前広場再編と北部エリア活用で描く次世代イノベーション拠点の全体像!!
幕張ベイパーク北側で千葉市立新病院整備事業により建設が進む「千葉市立幕張海浜病院」!!病床数349床の高度総合医療施設が2026年秋開院へ!!
三菱電機が半導体・EV需要拡大に対応する累計約555億円の大型投資!!愛知県尾張旭市で建設が進む「三菱電機名古屋製作所尾張旭地区 新生産棟」!!
歴史的建造物と高層ビルが融合! 都市開発マニアが案内する「丸の内建築ツアー」 が丸の内LOVE WALKERに掲載!!第27回 丸の内の正統派超高層ビルの足元には地下ダンジョンの極楽が潜んでいた…!「丸の内永楽ビルディング」
幕張ベイパークで建設が進む2026年4月開校の「千葉市立幕張若葉小学校」!!最大27学級対応のセミオープン校舎とメディアセンターを備える!!
神奈川県海老名市・小田急線南側約6.7haで進む複合開発「中新田丸田地区土地区画整理事業」!!戸建住宅とマンション、商業施設、公園を新たに整備へ!!
新舞子の海岸線沿いに名鉄都市開発の複合施設「(仮称)知多市新舞子計画新築工事」!!伊勢湾を一望できる新たな拠点形成へ!!
四国最大のターミナル駅・松山市駅の駅前広場を整備する「松山市駅前広場整備」!!大屋根新設や電停移設など洗練された交通結節空間が誕生へ!!
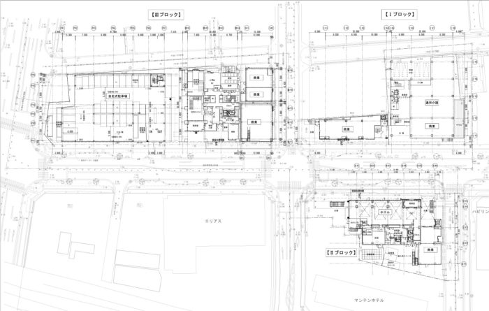
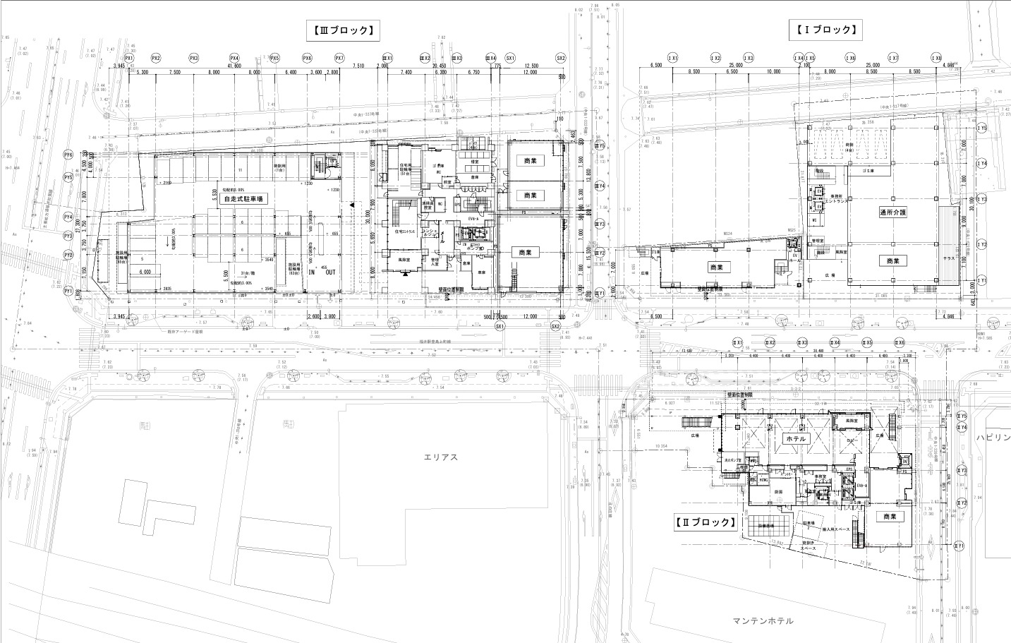
和歌山市民会館跡地で計画が進む多機能複合施設「旧和歌山市民会館活用事業」!!令和8年度内の事業契約締結、令和12年頃の供用開始を目指す!!
東急東横線・目黒線の新丸子駅で行われている「新丸子駅リニューアル工事」!!ホーム屋根の延伸工事や外壁、コンコースの刷新などが進む!!
西武新宿線・上石神井駅周辺で計画が進む「上石神井駅周辺のまちづくり」!!高架化や再開発、外環の2都市計画道路整備、車両基地再編後の土地利用誘導など複合的な大規模まちづくり!!
名作「坊っちゃん」の舞台で夏目漱石ゆかりの旧制松山中学校の跡地「NTT松山一番町プロジェクト」!!オフィスやマンションから構成される複合開発に!!
ささしまライブ24・中川運河堀止エリアに「NAKAGAWA CANAL DOORS(ナカガワ キャナル ドアーズ)」が令和8年6月18日(木)開業!!親水空間を活かした名古屋新都心の新たな“扉”に!!
JR南武線と小田急小田原線の乗換駅・登戸駅に全13店舗の駅直結型SC「ビーンズ登戸」が2026年春に開業!!周辺では再開発タワマン計画や区画整理も進む!!
新丸子駅近くの丸子温泉跡地に公衆浴場を併設した分譲マンション「(仮称)中原区新丸子町分譲マンション計画」の計画浮上!!

















