最新の都市開発ニュース
幕張本郷駅近くで進められている約37haの大規模開発プロジェクト「鷺沼特定土地区画整理事業」!!野村不動産のマンションやイオンタウンの複合商業施設を建設へ!!
アルティーリ千葉の新たなホームアリーナとなる「千葉県立幕張海浜公園Aブロックアリーナ計画」!!遂にボーリング調査に着手!!
名古屋市科学館「鉄道ひろば」は2026年3月28日(土)に一般公開!!B6形蒸気機関車を圧縮空気により動態展示へ!!
JR横浜線相模原駅周辺を高架化する「相模原駅北口地区のまちづくりに伴うJR横浜線の連続立体交差事業」!!令和8年度に予備調査を実施へ!!
2026年3月14日(土)に開業するJR山陽本線の姫路駅~英賀保駅間に整備された新駅「手柄山平和公園」駅!!ひめじスーパーアリーナとデッキで直結!!
歴史的建造物と高層ビルが融合! 都市開発マニアが案内する「丸の内建築ツアー」 が丸の内LOVE WALKERに掲載!!第26回こいつがあるから有楽町はおもしろい! ”エンタメの街”という色付けの発信地「有楽町マリオン」はいかにして建てられたのか?
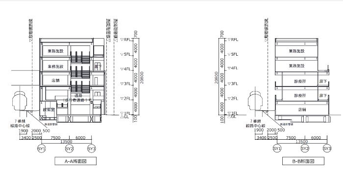
名古屋高速道路新洲崎ジャンクション(JCT)に新たな出入口を設置する「(仮称)新洲崎出入口新設事業」!!名駅と高速道路ネットワークとの結節機能強化へ!!
官民共創スペース「E:N BASE(エン・ベース)」も入る「愛媛県庁第二別館」が間もなく竣工!!歴史的建造物・愛媛県庁本館と調和した新庁舎に!!
遂に都市計画道路・笹島線(東側区間)が姿を現した名駅とささしまライブエリアの結節点で進む「名駅南地区まちづくり」!!ポルシェアプルーブド&サービスセンター名古屋も2026年開業へ!!
大曽根駅前に「東横イン」によるホテル計画浮上!!大曽根地区総合整備事業や高架下商業施設の刷新が進み、名古屋の新たな都心ターミナル形成へ!!
新鎌ヶ谷駅北西側一帯を大規模に開発する構想「新鎌ケ谷駅西側地区」!!北千葉道路の延伸整備や緑道ゾーンで進む公園整備!!
芝田1丁目計画の事業実施に向けて2026年1月24日(土)から大阪梅田駅・神戸線の列車停止位置を約14メートル移動へ!!日本最大の頭端式ターミナル駅の改良が遂に着手!!
優先交渉権者が選定された「旧岐阜県庁舎利活用事業」!!みんなの森 ぎふメディアコスモスや岐阜市役所新庁舎も立地する司町エリアがますます魅力的に!!
JR予讃線松山駅周辺約2.4kmを高架化する「JR松山駅付近連続立体交差事業」!!長屋門モチーフと木ルーバーが印象的な新高架駅、まもなく事業完了!!
星が丘ボウル跡地で建設が進む「(仮称)星が丘ボウル跡地プロジェクト」!!椙山女学園大学や名古屋市のアクティブライブラリー、ブランズ星が丘テラスが入る複合施設に!!
神戸ウォーターフロントグランドデザインに基づき、「京橋地区」の埋め立てを2026年度に着手!!賑わい施設導入や水際プロムナードの整備へ!!
ヤマハ発動機本社エリアで2棟の新社屋建設へ!!鎌田第一土地区画整理事業など2020年開業のJR東海道本線御厨駅周辺で進む都市開発!!
愛知県小牧市・検討が進む名鉄小牧駅周辺の再整備計画「小牧駅前広場等整備」!!名鉄小牧駅ビル存続案と現ビル解体・複合施設新設案が公表!!
横須賀市久里浜地区で構想されている大規模な都市再生整備計画「京急久里浜駅周辺地区市街地総合再生計画」・「 JR久里浜駅周辺地域」!!
2026年春開業の「セトレ名古屋(仮称)」やコミュニティ拠点の整備が進むささしまライブ・中川運河堀止地区開発「NAKAGAWA CANAL DOORS(仮称)」!!














