最新の都市開発ニュース
「成田スカイアクセス線」鎌ヶ谷駅~印旛日本医大駅間を複々線化する構想が浮上!!旧成田新幹線計画跡地を活用し、都心~成田空港間の速達性と沿線利便性を大幅強化か!?
大阪府吹田市・万博記念公園駅前の約16.9haで計画が進む「(仮称)万博記念公園駅前周辺地区活性化事業」!!約1.8万人収容のアリーナを中心としたスポーツ・文化・商業・住宅が融合する複合都市拠点形成へ!!
デザインアンケートが実施されている東武アーバンパークライン・大和田駅「大和田駅の橋上駅舎化および南北自由通路の設置」!!橋上駅舎化のほか駅前広場整備も計画中!!
JR阪和線・津久野駅周辺で大規模な再整備計画「津久野駅周辺再整備」!!市街地住宅の更新による高層住宅建設や駅前広場、自由通路整備などの計画が進む!!
遂に構想が実現へ!!池袋駅東口と西口を高架レベルで結ぶ「池袋駅東西連絡通路(東西デッキ)」!!2026年度からは概略基本設計に着手予定!!
大阪府堺市北区・中百舌鳥駅で駅前広場と民間施設の整備を行う「中百舌鳥イノベーション創出拠点」!!駅前広場再編と北部エリア活用で描く次世代イノベーション拠点の全体像!!
幕張ベイパーク北側で千葉市立新病院整備事業により建設が進む「千葉市立幕張海浜病院」!!病床数349床の高度総合医療施設が2026年秋開院へ!!
三菱電機が半導体・EV需要拡大に対応する累計約555億円の大型投資!!愛知県尾張旭市で建設が進む「三菱電機名古屋製作所尾張旭地区 新生産棟」!!
歴史的建造物と高層ビルが融合! 都市開発マニアが案内する「丸の内建築ツアー」 が丸の内LOVE WALKERに掲載!!第27回 丸の内の正統派超高層ビルの足元には地下ダンジョンの極楽が潜んでいた…!「丸の内永楽ビルディング」
幕張ベイパークで建設が進む2026年4月開校の「千葉市立幕張若葉小学校」!!最大27学級対応のセミオープン校舎とメディアセンターを備える!!
神奈川県海老名市・小田急線南側約6.7haで進む複合開発「中新田丸田地区土地区画整理事業」!!戸建住宅とマンション、商業施設、公園を新たに整備へ!!
新舞子の海岸線沿いに名鉄都市開発の複合施設「(仮称)知多市新舞子計画新築工事」!!伊勢湾を一望できる新たな拠点形成へ!!
四国最大のターミナル駅・松山市駅の駅前広場を整備する「松山市駅前広場整備」!!大屋根新設や電停移設など洗練された交通結節空間が誕生へ!!
和歌山市民会館跡地で計画が進む多機能複合施設「旧和歌山市民会館活用事業」!!令和8年度内の事業契約締結、令和12年頃の供用開始を目指す!!
東急東横線・目黒線の新丸子駅で行われている「新丸子駅リニューアル工事」!!ホーム屋根の延伸工事や外壁、コンコースの刷新などが進む!!
西武新宿線・上石神井駅周辺で計画が進む「上石神井駅周辺のまちづくり」!!高架化や再開発、外環の2都市計画道路整備、車両基地再編後の土地利用誘導など複合的な大規模まちづくり!!
名作「坊っちゃん」の舞台で夏目漱石ゆかりの旧制松山中学校の跡地「NTT松山一番町プロジェクト」!!オフィスやマンションから構成される複合開発に!!
ささしまライブ24・中川運河堀止エリアに「NAKAGAWA CANAL DOORS(ナカガワ キャナル ドアーズ)」が令和8年6月18日(木)開業!!親水空間を活かした名古屋新都心の新たな“扉”に!!
JR南武線と小田急小田原線の乗換駅・登戸駅に全13店舗の駅直結型SC「ビーンズ登戸」が2026年春に開業!!周辺では再開発タワマン計画や区画整理も進む!!
新丸子駅近くの丸子温泉跡地に公衆浴場を併設した分譲マンション「(仮称)中原区新丸子町分譲マンション計画」の計画浮上!!

日本橋室町一丁目地区第一種市街地再開発事業

日本橋室町一丁目地区第一種市街地再開発事業は、東京都中央区日本橋室町1丁目で建設中の地上34階、地下4階、高さ172.900mの超高層ビルです。立地は、東京メトロ「三越前」駅に面しており、西側を国道4号(中央通り)、東側を区道19号線、南側を区道147号線に囲まれた場所及び、日本橋川と区道6号線に挟まれた一帯に位置しています。既存建築物には、「福島ビル」、「東洋ビル」、「山本ビル」、「日本橋室町162ビル」、「室町NSビル」、「東興ビル」など複数棟が建ち並んでいました。

再開発事業により、土地の合理的かつ健全な高度利用と都市機能の更新を図り、歩行者ネットワークの強化による回遊性の向上や国際競争力の高いライフサイエンスビジネス拠点の形成を目指すものとされています。また、事業効果としては、日本橋川沿いの賑わいのある水辺空間と回遊を促す歩行者基盤の整備、国際競争力の強化に資するライフサイエンス拠点及び居住環境の形成、防災対応力強化と環境負荷低減が掲げられています。

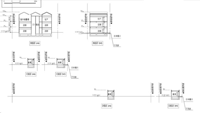
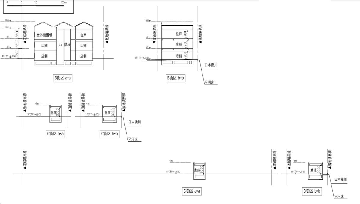
棟配置は、北側に地上34階、地下4階、高さ172.900mの「A街区」、日本橋川に面して地上3階、高さ約15mの「B街区」、地上1階、高さ4mの「C街区」、地上1階、高さ4mの「D街区」から構成されます。

施設構成は、「A街区」の地下4階~地下2階に駐車場、機械室、地下1階~地上1階に店舗、エントランス、2階~3階に店舗、4階に機械室、5階にオフィスロビー、貢献施設、6階に機械室、7階に貢献施設、8階~27階に事務所、28階~33階に総戸数約66戸の住宅、34階に附室・ハト小屋、PH1階~PH2階にEV機械室、「B街区」の1階~2階に店舗、3階に住宅、「C街区」の1階に倉庫、「D街区」の1階に倉庫となります。また、A街区の中央やや北側に幅員約8.0mの貫通通路「むろまち小路」を整備するほか、B街区には歩行者通路29号の一部を整備、C・D街区間には日本橋一丁目中地区方向へ日本橋川上に新設する構想のある人道橋へ通じる新設区道(歩行者専用通路)も整備されます。

建築主は日本橋室町一丁目地区市街地再開発組合、参加組合員は三井不動産株式会社、コンサルタントは株式会社日建設計です。既存建築物解体着手は2025年12月1日、着工はA街区が2026年8月末日、B・C・D街区が2033年3月末日、竣工はA街区が2032年3月末日、B・C・D街区が2034年3月末日となっています。

出典・引用元

内閣府国家戦略特区 第15回 東京都都市再生分科会 配布資料 資料6 都市再生特別地区(日本橋室町一丁目地区)都市計画の概要
東京都 日本橋室町一丁目地区市街地再開発組合の設立
日本橋リバーウォーク 公式サイト

過去の建設状況

→過去の建設状況


出典∶日本橋リバーウォーク公式サイト/三井不動産株式会社

概要

名称 日本橋室町一丁目地区第一種市街地再開発事業
計画名 日本橋室町一丁目地区第一種市街地再開発事業
所在地 東京都中央区日本橋室町1丁目5番の一部、6、8番
用途 A街区:住宅、事務所、店舗、駐車場
B街区:店舗
C街区:倉庫 ※店舗等
D街区:倉庫 ※店舗等
階数 A街区:地上34階、地下4階、塔屋2階
B街区:地上3階
C街区:地上1階 ※地上3階
D街区:地上1階 ※地上3階
高さ A街区:172.900m
B街区:約15m
C街区:約4m ※約15m
D街区:約4m ※約15m
構造 A街区:鉄骨鉄筋コンクリート造、鉄筋コンクリート造、鉄骨造
B街区:鉄骨造、木造
C街区:鉄骨造
D街区:鉄骨造
基礎工法
総戸数 約66戸
敷地面積 約6,830㎡
A街区:約4,800㎡
B街区:約430㎡
C街区:約240㎡
D街区:約1,360㎡
建築面積 約4,610㎡
A街区:約4,330㎡
B街区:約240㎡
C街区:約20㎡
D街区:約20㎡
延床面積 約116,730㎡
A街区:約116,100㎡
B街区:約590㎡
C街区:約20㎡ ※約300㎡
D街区:約20㎡ ※約1,500㎡
着工 A街区:2026年8月末日
B・C・D街区:2033年3月末日
既存建築物解体着手:2025年12月1日
竣工 A街区:2032年3月末日
B・C・D街区:2034年3月末日
建築主 日本橋室町一丁目地区市街地再開発組合
参加組合員:三井不動産株式会社
設計 コンサルタント:株式会社日建設計
施工
最寄駅 東京メトロ銀座線、半蔵門線「三越前」駅、東京メトロ銀座線、東西線、都営浅草線「日本橋」駅
備考 ※:日本橋リバーウォーク公式サイト記載数値

▼施設構成
🔻A街区
地下4階~地下2階:駐車場、機械室
地下1階~地上1階:店舗、エントランス
2階~3階:店舗
4階:機械室
5階:オフィスロビー、貢献施設
6階:機械室
7階:貢献施設
8階~27階:事務所
28階~33階:住宅
34階:附室・ハト小屋
PH1階~PH2階:EV機械室

🔻B街区
1階~2階:店舗
3階:住宅

🔻C街区
1階:倉庫

🔻D街区
1階:倉庫

 

 

配置図

出典∶東京都

断面図

出典∶東京都
出典∶中央区
出典∶中央区

イメージパース

▼当初計画

出典∶内閣府

2026年1月既存建築物解体状況

日本橋室町一丁目地区第一種市街地再開発事業は、日本橋室町周辺エリアの新たな拠点形成を目的に、質の高いパブリックスペースの創出、日本橋川沿いの賑わいある水辺空間の整備、エリア内を回遊させる歩行者ネットワークの強化を柱とした都市空間づくりを進める再開発事業です。中央通りや周辺街区との連続性を高め、人の流れを自然に誘導することで、にぎわいと交流を生み出す都市構造の再編を図るものとされています。

また、国際競争力の強化に資する都市機能として、ライフサイエンス産業を支える拠点機能や、多様な人々の居住ニーズに対応した住宅機能を導入し、日本橋エリア全体の活力向上を目指します。あわせて、防災機能の高度化や環境負荷の低減にも積極的に取り組み、持続可能でレジリエントな都市再生モデルの構築を志向しています。

 

A街区

南西側から見た既存建築物の解体、除去が進む日本橋室町一丁目地区第一種市街地再開発事業 A街区の様子です。

施設建築物は、都市機能を集中的に配置するA街区と、日本橋川沿いに展開するB・C・D街区で構成されます。各街区の歴史性や周辺環境との調和を重視しつつ、ヒューマンスケールで快適な都市空間を形成することが基本方針です。

 

出典∶日本橋リバーウォーク公式サイト/三井不動産株式会社

A街区では、大街区化による高度利用を進め、ライフサイエンス産業を支援する拠点施設、オフィス、居住施設、店舗など多機能を集積させます。敷地中央には、旧むろまち小路の位置を踏襲した貫通動線を整備し、中央通りからの人の流れを引き込むゲート空間を形成します。さらに、地下鉄と地上を結ぶ結節機能を強化し、日本橋室町エリア全体へのスムーズな回遊を促進します。

沿道には路面店舗を多く配置し、中央通り、按針通り、むろまち小路など通りごとの個性を活かした連続的な賑わいと景観形成を図ります。加えて、帰宅困難者受入れスペースや備蓄倉庫、非常用発電設備、地域冷暖房・電力供給との連携により、高度な防災・業務継続機能を備えた都市拠点を構築します。

 

北西側から見た既存建築物の解体、除去が進む日本橋室町一丁目地区第一種市街地再開発事業 A街区の様子です。

敷地計画では、地下鉄とまちをつなぐ結節点の形成と、エリア全体の回遊性・安全性の向上を重視しています。A街区では、むろまち小路を廃道し、幅員約8mの歩行者専用貫通通路として再編することで、中央通りから人の流れを導く象徴的なゲート空間を創出します。また、区道19号線沿いには連続した壁面形成と歩道状空地の整備により、歩きやすく賑わいのある街路空間を整えます。

 

北東側から見た既存建築物の解体、除去が進む日本橋室町一丁目地区第一種市街地再開発事業 A街区の様子です。

 

 

出典∶日本橋リバーウォーク公式サイト/三井不動産株式会社

地下には約300㎡の溜まり空間を設け、三越前駅コンコースと接続するバリアフリー動線を整備することで、地上・地下の立体的な回遊性を高める計画です。B街区では歩行者通路と小規模緑地を点在配置し、C・D街区では将来的に歩行者通路整備が行われる計画です。緑化については、植樹帯や屋上緑化を通じて東京都条例および中央区の緑化方針に適合させ、都市環境の質の向上とヒートアイランド対策が図られます。

 

既存建築物の解体、除去が進む日本橋室町一丁目地区第一種市街地再開発事業 A街区と日本橋周辺の街並みの様子です。

本事業では、区域外においても道路舗装整備や電線類地中化などを実施し、歩行環境の改善、景観形成、防災性向上に寄与します。さらに、将来の人道橋整備については、本事業が費用負担を担い、日本橋川を越えた歩行者ネットワークの拡充に貢献します。

防災面では、約1,000㎡規模の帰宅困難者受入施設や屋外待機空間、備蓄倉庫、非常用発電設備を整備し、災害時の地域支援拠点機能を確保します。エネルギー面では、コージェネレーションシステムや地域冷暖房との連携により、平常時の高効率運用と非常時のエネルギー自立性を両立させます。

 

日本橋室町一丁目地区第一種市街地再開発事業 A街区の区域内の道路は閉鎖され、既存建築物の解体工事が始まっています。

 

 

既存建築物の解体工事は、大林組にて進められています。

 

 

既存建築物の解体、除去が進む日本橋室町一丁目地区第一種市街地再開発事業の様子です。

環境負荷低減においては、高効率設備、再生可能エネルギー活用、雨水利用、屋上緑化などを導入し、CO₂排出削減と快適な都市環境の実現を目指します。これらの取り組みにより、本事業は日本橋エリアの国際競争力と都市価値を高める先導的な再開発モデルとして位置付けられます。

 

南東側から見た既存建築物の解体、除去が進む日本橋室町一丁目地区第一種市街地再開発事業の様子です。

 

 

B街区

北西側から見た日本橋室町一丁目地区第一種市街地再開発事業 B街区の建設地の様子です。B街区は、A街区整備後に段階的な更新を行い、低層の店舗・住宅とプロムナードを整備することで、水辺の回遊性と滞留性を高める計画です。緑を配したポケットパークの配置により、賑わいと憩いが共存する親水空間を創出します。

 

北東側から見た日本橋室町一丁目地区第一種市街地再開発事業 B街区の建設地の様子です。将来的には、首都高地下化事業および本事業完了後、土地所有者により川沿いのオープンスペースやプロムナードが整備され、低層店舗の配置によって、水辺に開かれた賑わい空間が形成される見込みです。

 

C街区

北側から見た日本橋室町一丁目地区第一種市街地再開発事業 C街区の建設地の様子です。

C・D街区では、既存建物の解体後、防災用途に供する倉庫を整備する一方、首都高速道路地下化事業との連携が重要な位置付けとなります。工事期間中は仮受柱の設置や工事スペースの確保などに協力し、地下ルートを考慮した低層建築・構造計画を採用します。再開発組合の解散時点では地下化関連工事が継続する可能性がありますが、本事業としては倉庫整備をもって完了するものとされています。

 

D街区

北西側から見た日本橋室町一丁目地区第一種市街地再開発事業 D街区の建設地の様子です。

最終更新日:2026年1月18日

タイトルとURLをコピーしました