最新の都市開発ニュース
名鉄犬山線布袋駅付近約1.8kmの高架化が完了した「布袋駅付近鉄道高架化事業」!!高架化とMOKU KICHI開業で変わる布袋駅周辺!!
愛知県江南市の名鉄犬山線布袋駅前に整備された図書館などの公共施設や商業施設から構成される複合施設「toko+toko=labo(トコ・トコ・ラボ)」!!
ヤクルト二軍球場隣接地一帯約60haで物流・産業拠点形成へ!!常磐自動車道守谷SA付近で計画が進む「(仮称)守谷SAスマートIC周辺土地区画整理事業」!!
東武伊勢崎線と野田線の乗換駅・春日部駅を高架化する「春日部駅付近連続立体交差事業」!!2026年時点では1〜4番線の仮ホームを供用!!踏切10か所を除却へ!!
茨城県守谷市にプロ野球球団・東京ヤクルトスワローズの新たな二軍施設!!建設工事に着手した「ヤクルト球団二軍球場整備計画」!!
芝浦と高輪を結ぶ「提灯潰しのトンネル」への新動線!!第二東西連絡道路整備で2026年3月28日から高輪ゲートウェイシティ東側ルートに変更、国道15号を経由せず高輪ゲートウェイ駅へアクセス可能に!!
茨城県つくば市吾妻二丁目の70街区で新たなまちづくり!!「吾妻二丁目国家公務員宿舎跡地」で複合的な都市機能の導入へ!!
堂島川と土佐堀川の下をトンネルで貫くため地下5層構造となる「なにわ筋線(仮称)中之島駅」!!2031年春の開業を目指して工事進行中!!
名鉄犬山線・西春駅前のパヨシヅヤYストア西春店・アーバンドエル西春駅前を再開発する構想!!エスコンによる分譲マンション・商業施設・オフィスから構成される複合開発計画!!
歴史的建造物と高層ビルが融合! 都市開発マニアが案内する「丸の内建築ツアー」 が丸の内LOVE WALKERに掲載!!第28回 かつての東洋一から日本一のビルへ! 丸の内の空を塗り変える「TOKYO TORCH」再開発秘話
遂に着工して工事が本格化した「等々力緑地再編整備・運営等事業」!!球技専用スタジアム化や(新)とどろきアリーナ・スポーツセンター、陸上競技場などを新設へ!!
児島公園と周辺で新たに整備される「児島地区公共施設再編整備事業」!!短期大学棟と(仮称)地域交流スクエア棟、倉敷ファッションセンター棟を建設へ!!
静岡市・JR清水駅前に多目的スタジアムを核とした新たなまちづくり「JR清水駅東口地域づくりエリアの土地利活用方針」が公表!!GX・次世代モビリティとの連携や超スマートガーデンシティ構想も!!
東武スカイツリーライン竹ノ塚駅付近を高架化した「東武伊勢崎線(竹ノ塚駅付近)連続立体交差事業」!!木のぬくもりを感じる高架駅、駅前広場も完成!!
中野駅にアトレも入る新たな駅ビルを建設する「中野駅西側南北通路及び新駅舎整備・駅ビル開発」!!駅前広場や中野四季の森公園まで歩行者デッキも整備へ!!
筑波大学が新設する大規模研究施設「筑波大学IMAGINE THE FUTURE.Forum研究スロット棟(仮称)」!!広域イノベーション創出を担う次世代サイエンスパーク構想!!
大手町に建つ赤白ロケットのような鉄塔が遂に解体へ!!タワークレーンが設置されて解体が進む「NTTコム大手町本館鉄塔および建物地上部解体工事」!!
人口増加率全国トップクラスで住みたい街ランキング急上昇のつくば市で新たな大規模マンション計画浮上!!公務員宿舎跡地90街区に建設される「(仮称)つくば市吾妻2丁目計画 新築工事」!!
愛知県長久手市・旧し尿処理施設「香流苑」跡地に総戸数256戸の大規模マンション「市有地(上川原地内)活用」!!藤が丘駅徒歩圏に2030年3月完成へ!!
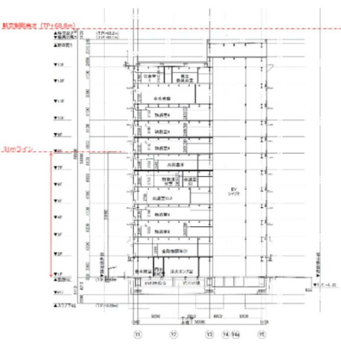
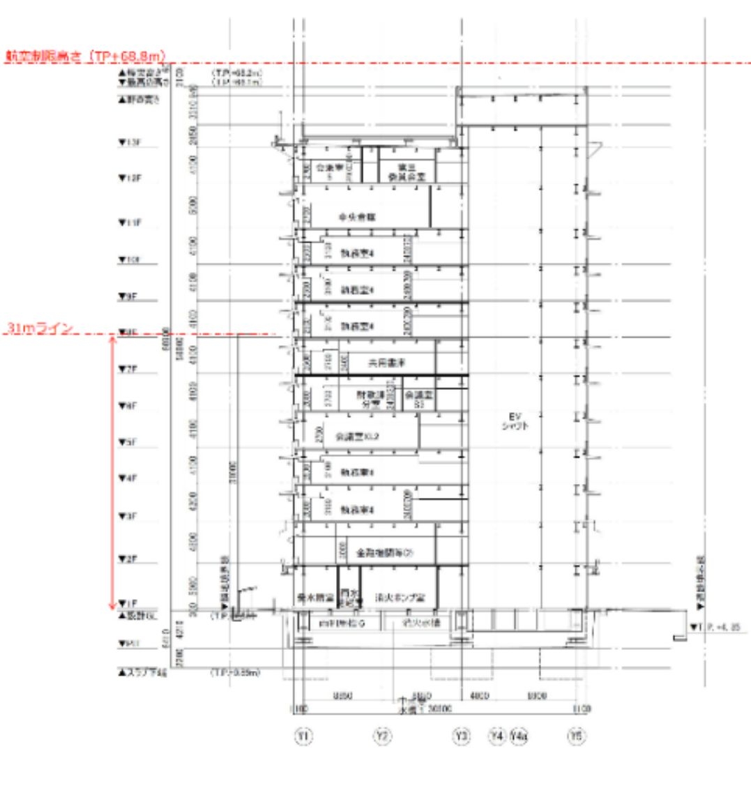
静岡市のJR清水駅前で計画が進む高層複合庁舎「新清水庁舎建設基本計画」!!PPP手法を採用して行政機能のみならずホテルやオフィス、商業施設も整備へ!!














