最新の都市開発ニュース
野村證券高輪研修センター跡地に約1.5haの大規模住宅開発始動!!2035年度竣工へ向けて進む高輪の新たな高級レジデンス計画「(仮称)高輪二丁目計画」!!
イオンレイクタウンに水辺の新名所誕生!!「レイクサイド ダイニング」「レイクサイド パーク」が2026年5月30日(土)開業へ!!
富士駅北口駅前広場整備の中核施設として整備される「(仮称)富士駅北口駅前公益施設」!!スタディ&ワークスペースやSTEAMラボ、富士山テラスを備える新たな市民活動拠点に!!
鉄骨建方が進み駅舎の全貌が見えてきたJR鹿児島本線「JR貝塚駅」!!2027年開業へ向けて橋上駅舎と自由通路が姿を現す!!
名鉄岐阜駅の旧商業施設「ect(イクト)」をリニューアル!! 再開発計画を見直し、2027年度に新たな商業施設として開業へ!!
新綱島駅前に歴史的建造物を活用した新たな木造商業拠点が誕生へ「(仮称)池谷家古民家周辺不動産活用プロジェクト」!!2026年秋開業予定!!
首都圏北東部に新たな鉄道路線構想「東京直結鉄道」!!東京メトロ有楽町線延伸で野田市・茨城県西南部へ広がる都心直結構想!!
旧福岡市民会館跡地が遂に更地に!!福岡市民ホールと一体で進む「福岡市拠点文化施設整備及び須崎公園再整備事業」!!天神に誕生する文化芸術と緑の新ランドマーク!!
開業以来最大規模のリニューアルへ!!子育てファミリーに優しい新たな街の拠点に進化する「bono(ボーノ)相模大野ショッピングセンター」!!ワークマンカラーズや西松屋、無料の屋内遊び場も誕生!!
ついに名古屋の官庁街が大変貌へ!!リニア時代の新たな都心拠点を形成する「名古屋城三の丸地区まちづくり構想」!!歴史・行政・ビジネス・観光が融合する新たなまちへ!!
なんばのクボタ旧本社跡地で計画が進む約1万2,500人収容のアリーナ「(仮称)なんばアリーナ」!!三井不動産と関電不動産開発を優先交渉権者に決定!!
熊本県菊陽町で建設が進むTSMCによる半導体製造拠点「JASM第2工場」!!総投資額約2.1兆円の国家プロジェクトに!!
屋根改修工事が完了した帝冠様式の近代建築「愛知県庁本庁舎」!!銅板屋根の全面葺替えで重要文化財の歴史的景観がよみがえる!!
ソニーセミコンダクタソリューションズとTSMCが次世代イメージセンサーで戦略提携!!熊本県合志市で建設が進む「SCK新工場」!!フィジカルAI時代を見据えた次世代センシング拠点へ!!
川崎・南渡田で進むヒューリックとJFEスチールによる複合開発「(仮称)南渡田北地区北側開発」!!研究開発から社会実装までを担う国内最大級の次世代リサーチパーク始動!!
Daily Good+をコンセプトにリニューアル工事が進む名駅地下街「メイチカ」 !!全面改修工事が行われて2026年9月オープンへ!!
味の素スタジアム隣接地でFC東京連携による公園整備計画が進む「調布基地跡地留保地」!!多摩地域の新スポーツ拠点形成へ!!
熊本県合志市・分散型サイエンスパークの中核拠点「くまもとサイエンスパーク」始動!!イノベーション創発エリアが造成工事へ着手!!
紀州材×循環型社会の先進モデル「東急池上線石川台駅 木になるリニューアル」!!温もりと機能性が融合する駅へ!!
再開発で誕生した青森中心市街地の新ランドマーク「THREE(スリー)/レーベン青森新町 THE GRAND MID」!!フードホール「アオマチテラス」も開業した複合都市拠点!!

プレミストタワー富山中央通り

プレミストタワー富山中央通りは、富山県富山市中央通り一丁目、常盤町で建設中の地上24階、高さ83.31mの「高層棟」、地上7階、高さ約29mの「低層棟」から構成される総戸数225戸のタワーマンションです。立地は、西側を「中町(西町北)」電停のある県道43号南側を中央通り、東側を区画街路第3402号線、北側を区画街路第3414号線に囲まれた一帯に位置しています。

再開発区域は、富山を代表する繁華街となっていますが、近年空き店舗の増加や老朽化が進んでいることや、細分化された小さな敷地に、老朽化した建物が 建ち並び、防災上の不安があるなどの課題があります。そのため、再開発事業により権利者施設にあわせて、都心型住宅やアイススケート場などから構成される複合施設をせいびすることにより、賑わいの創出やまちなか居住の促進に寄与するとともに、土地の合理的かつ健全な高度利用と都市機能の更新を図るものとされています。

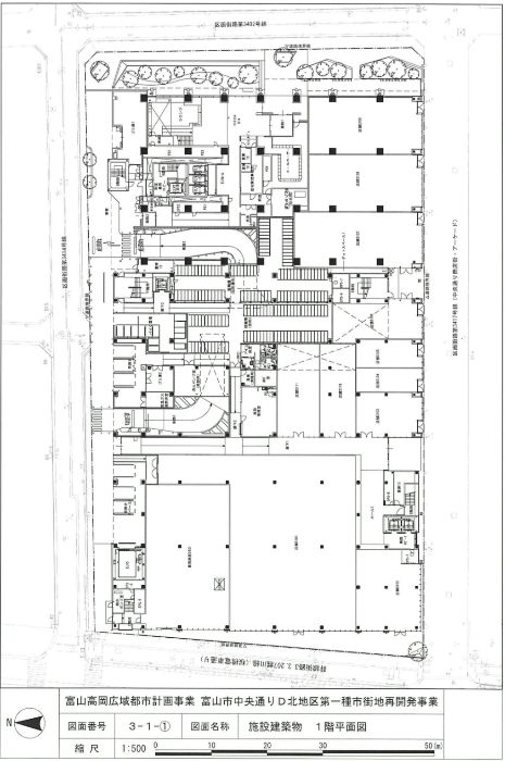
施設構成は、「高層棟」は、1階~2階に店舗および住宅エントランス、3階に中間免震層、4階~24階に住宅となります。「低層棟」は、1階に店舗、事務所、駐車場、駐輪場ほか、2階~3階に事務所および駐車場、4階~5階に駐車場、6階~7階にアイススケート場となります。建築主は富山市中央通りD北地区市街地再開発組合、参加組合員は大和ハウス工業株式会社、三菱地所レジデンス株式会社、ミサワホーム株式会社、設計はRIA・押田設計共同体、施工は株式会社フジタです。着工は2024年10月1日、竣工は2027年9月となっています。

出典・引用元

富山市 再開発事業とは
プレミストタワー富山中央通り 公式サイト


出典:富山市中央通りD北地区市街地再開発組合/大和ハウス工業株式会社/三菱地所レジデンス株式会社/ミサワホーム株式会社

概要

名称 プレミストタワー富山中央通り
計画名 富山市中央通りD北地区第一種市街地再開発事業
所在地 富山県富山市中央通り1丁目1番18
用途 共同住宅、スケート場、物販店舗、飲食店、銀行の支店、事務所、自動車車庫、自転車駐車場、倉庫
階数 高層棟:地上24階
低層棟:地上7階
高さ 高層棟:83.31m
低層棟:約29m
構造 高層棟:鉄筋コンクリート造、一部鉄骨造
低層棟:鉄骨造
免震構造
基礎工法
総戸数 225戸(非分譲住戸15戸含む)
敷地面積 6,369.84㎡
建築面積 5,469.57㎡
延床面積 43,965.71㎡
着工 2024年10月1日
起工式:2024年9月30日
既存建築物解体着手:2023年7月
竣工 2027年9月
建築主 富山市中央通りD北地区市街地再開発組合
参加組合員:大和ハウス工業株式会社、三菱地所レジデンス株式会社、ミサワホーム株式会社
設計 RIA・押田設計共同体
施工 株式会社フジタ
最寄駅 富山地方鉄道富山軌道線「中町(西町北)」電停、富山地方鉄道富山軌道線「西町」電停
備考 ▼施設構成
🔻高層棟
1階~2階:店舗、住宅エントランス
3階:中間免震層
4階~24階:住宅

🔻低層棟
1階:店舗、事務所、駐車場、駐輪場ほか
2階~3階:事務所、駐車場
4階~5階:駐車場
6階~7階:アイススケート場

▼プレミストタワー富山中央通り
専有面積:52.54㎡~145.86㎡
間取り:1LDK~4LDK
共用施設:ー
 
 
 

位置図

配置図

出典∶富山市

断面図

出典:中央通りD北地区市街地再開発組合

イメージパース

▼当初計画

出典∶富山市

現地状況

南西側から見たプレミストタワー富山中央通りの建設地の様子です。2022年5月撮影。
プレミストタワー富山中央通りは、店舗・業務施設・アイススケート場・駐車場(駐輪場)などで構成される低層棟と、主に住宅で構成される高層棟からなる複合開発として計画されています。路面電車が走る幹線道路に面する1~3階には店舗や業務施設を配置し、都市の骨格にふさわしい中層的な賑わいを創出するとともに、南側のアーケード商店街に面しては、対面する既存店舗と呼応する小区画店舗を連続的に配置しています。

また、店舗間にはアイススケート場へとつながる貫通動線やオープンスペースを挿入し、回遊性とファサードのリズム感を生み出しています。住宅棟は幹線道路の喧騒を避けた東側に配置し、エントランス前には街と連続するオープンスペースを整備することで、商店街との一体感と都心居住の質の高さを両立させています。さらに、荷捌きや駐車場・駐輪場などの動線は北側道路に集約し、機能性と都市環境への配慮が図られています。

 

 

再開発区域南側には、アーケード商店街「富山中央通りさんぽ~ろ商店街」があります。
本計画の大きな特徴の一つが、低層棟6~7階に整備されるアイススケート場です。商業中心地に新たな人の流れを生み出す核施設として位置づけられ、国際規格に適合したリンク(60m×26m)に加え、約200席の観覧席や会議室などを備えています。これにより、日常的な練習や発表の場としてはもちろん、レジャーや交流、イベント利用など多様な使い方が可能となり、幅広い世代の来訪を促します。

特に、商店街に面して設けられるエントランスは、人の往来を積極的に引き込み、周辺エリアの回遊性向上にも寄与します。こうした施設整備により、既存の商店街の賑わいを継承しながら、新たな都市型アクティビティを融合させた魅力的な都市空間の形成が期待されています。

 

 

南東側から見たプレミストタワー富山中央通りの建設地の様子です。

 

 

再開発区域東側の街路の様子です。

 

 

北東側から見たプレミストタワー富山中央通りの建設地の様子です。

 

 

北西側から見たプレミストタワー富山中央通りの建設地の様子です。

 

 

Google Earth

最終更新日:2026年4月15日

タイトルとURLをコピーしました